Appartamento Via Roma 31, Isola del Cantone
€ 17.100Appartamento - Pentalocale a Isola del Cantone
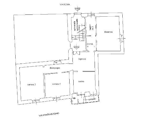
Isola del Cantone (Ge)-Via Roma n. 31/2 appartamento posto al piano rialzato, costituito da: ingresso, cucina, n. 2 camere da letto, bagno, ripostiglio e poggiolo. - Il Prezzo visualizzato è la Base d'Asta in quanto l’immobile è oggetto di esecuzione immobiliare venduto tramite Asta Giudiziaria. - L'immobile aggiudicato, viene venduto libero e sgombro da persone cose ed ipoteche nello stato di fatto e di diritto in cui si trova. - Non rappresentiamo il Tribunale, ma lavoriamo nell'esclusivo interesse del potenziale acquirente per garantire un acquisto sicuro. - I consulenti di ASTE ITALIA ti assisteranno in tutte le attività dell'iter giudiziario dalla visita dell'immobile fino alla consegna chiavi. - Contatta il nostro Servizio Clienti , i nostri operatori sono a disposizione per chiarire i molteplici dubbi per partecipare alle ASTE.
Dati principali
| Riferimento | GE112/24LU-1301-26-1200 |
| Data annuncio | 16/01/2025 |
| Contratto | Vendita |
| Tipologia | Appartamento |
| Superficie | 121 m2 |
| Locali | 5 (2 camere da letto, 3 altro), 1 bagno |
| Piano | 1 totali |
| Numero di balconi | 1 |
Costi
| Prezzo | 17.100 € |
| Prezzo al m2 | 141 €/m2 |
Efficienza energetica
| Classe energetica | G |
Planimetrie
Indirizzo e mappa
Via Roma 31, Isola del Cantone
Calcolo mutuo
Prezzo di vendita:
Anticipo
20,00
Mutuo
80,00
Tasso: -+
Rata: 49 al mese
I risultati sono una stima indicativa basata sui dati inseriti e non costituiscono un’offerta finanziaria.
Inserzionista
DOMY ONLINE S.R.L.
Via San Lorenzo 5/41, Genova
Mostra Telefono
Mostra Cellulare
Chiama
CONTATTA

