Appartamento all'asta Strada Ceroggia 3, Castelnuovo Scrivia
€ 14.036Appartamento - Pentalocale a Castelnuovo Scrivia
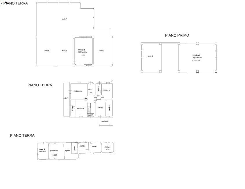
Abitazione di tipo economico, fabbricato ad uso residenziale con annesso box auto con accesso da cortile in comunione, posto al piano T in fabbricato di complessivi piani 2 con ingresso in comune composto da camere, cucina, bagno, corridoio, cabina armadio, portico, accessori e autorimessa - con terreno adiacente il fabbricato seminativo irriguo - Il Prezzo visualizzato è la Base d'Asta in quanto l’immobile è oggetto di esecuzione immobiliare venduto tramite Asta Giudiziaria. - L'immobile aggiudicato, viene venduto libero e sgombro da persone cose ed ipoteche nello stato di fatto e di diritto in cui si trova. - Non rappresentiamo il Tribunale, ma lavoriamo nell'esclusivo interesse del potenziale acquirente per garantire un acquisto sicuro. - I consulenti di ASTE ITALIA ti assisteranno in tutte le attività dell'iter giudiziario dalla visita dell'immobile fino alla consegna chiavi. - Contatta il nostro Servizio Clienti , i nostri operatori sono a disposizione per chiarire i molteplici dubbi per partecipare alle ASTE.
Dati principali
| Riferimento | AL230/22L2-0705-26-1000 |
| Data annuncio | 30/10/2023 |
| Contratto | Vendita |
| Tipologia | Appartamento |
| Superficie | 210 m2 |
| Locali | più di 5 (2 camere da letto, 7 altro), 1 bagno |
| Piano | 2 totali |
Costi
| Offerta minima | € 14.036 |
| Prezzo al m2 | 67 €/m2 |
Efficienza energetica
| Classe energetica | G |
Planimetrie
Indirizzo e mappa
Strada Ceroggia 3, Castelnuovo Scrivia
Calcolo mutuo
Prezzo di vendita:
Anticipo
20,00
Mutuo
80,00
Tasso: -+
Rata: 40 al mese
I risultati sono una stima indicativa basata sui dati inseriti e non costituiscono un’offerta finanziaria.
Inserzionista

DOMY ONLINE S.R.L.
Via San Lorenzo 5 Int. 41, Genova
Mostra Telefono
Mostra Cellulare
Chiama
CONTATTA

