Villa all'asta Via de Gasperi 8, Sale
€ 53.764Indipendente - Villa a Sale
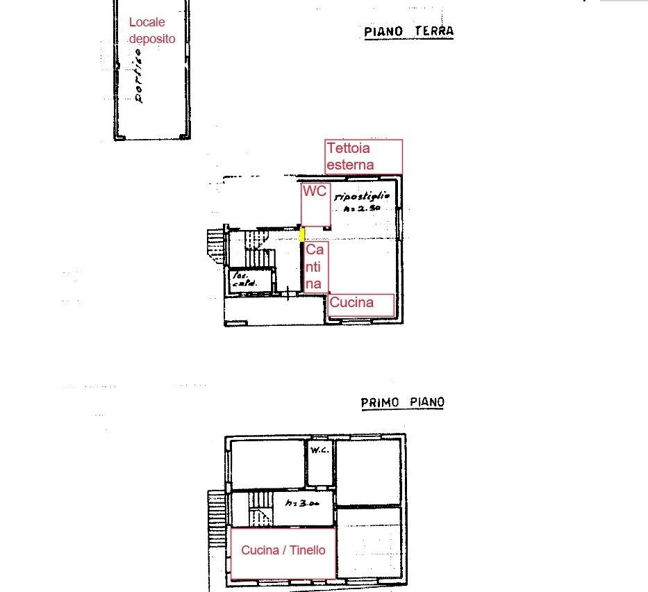
Piena proprietà dei seguenti beni immobili: Abitazione unifamiliare (villa) composto al piano primo da: cucina/tinello, bagno, n. 2 camere da letto e soggiorno; al piano terra da locali di pertinenza: ripostiglio, cantina, bagno, locale caldaia. Box auto e locale deposito. - Il Prezzo visualizzato è la Base d'Asta in quanto l’immobile è oggetto di esecuzione immobiliare venduto tramite Asta Giudiziaria. - L'immobile aggiudicato, viene venduto libero e sgombro da persone cose ed ipoteche nello stato di fatto e di diritto in cui si trova. - Non rappresentiamo il Tribunale, ma lavoriamo nell'esclusivo interesse del potenziale acquirente per garantire un acquisto sicuro. - I consulenti di ASTE ITALIA ti assisteranno in tutte le attività dell'iter giudiziario dalla visita dell'immobile fino alla consegna chiavi. - Contatta il nostro Servizio Clienti , i nostri operatori sono a disposizione per chiarire i molteplici dubbi per partecipare alle ASTE.
Dati principali
| Riferimento | AL123/24LU-2605-26-1500 |
| Data annuncio | 24/02/2025 |
| Contratto | Vendita |
| Tipologia | Villa |
| Superficie | 184 m2 |
| Locali | più di 5 (2 camere da letto, 5 altro), 2 bagni |
| Piano | 2 totali |
| Numero di balconi | 1 |
Caratteristiche
Costi
| Offerta minima | € 53.764 |
| Prezzo al m2 | 292 €/m2 |
Efficienza energetica
| Classe energetica | G |
Planimetrie
Indirizzo e mappa
Via de Gasperi 8, Sale
Calcolo mutuo
Prezzo di vendita:
Anticipo
20,00
Mutuo
80,00
Tasso: -+
Rata: 154 al mese
I risultati sono una stima indicativa basata sui dati inseriti e non costituiscono un’offerta finanziaria.
Inserzionista

DOMY ONLINE S.R.L.
Via San Lorenzo 5 Int. 41, Genova
Mostra Telefono
Mostra Cellulare
Chiama
CONTATTA

