Villa a Schiera all'asta Vicolo Monzambano 10, Frugarolo
€ 25.474Semindipendente - Villa a schiera a Frugarolo
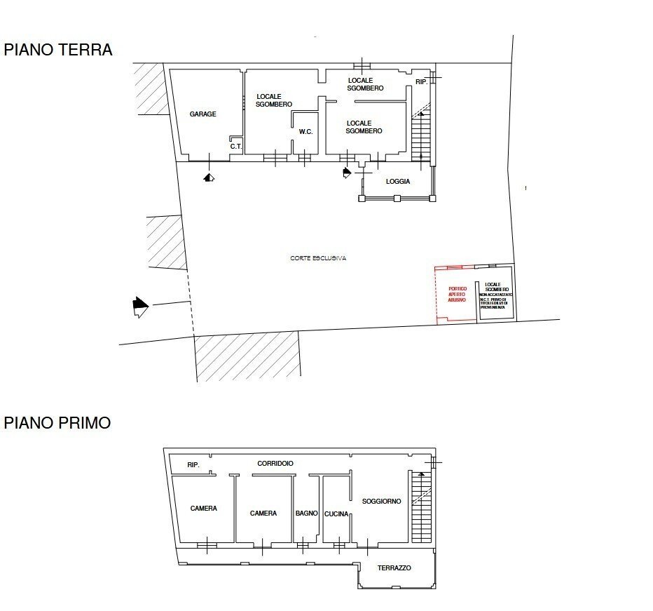
Fabbricato indipendente disposto su due piani fuori terra con sedime pertinenziale di circa mq 200. Il piano terra è composto da: loggia di ingresso, tre locali di sgombero, w.c., ripostiglio; il piano primo da: soggiorno, cucina, corridoio, bagno, ripostiglio, due camere, terrazzo. I pavimenti interni sono in piastrelle di ceramica, i serramenti interni in legno tamburato, i serramenti esterni in legno con persiane, il riscaldamento autonomo con caldaia a gas. - Il Prezzo visualizzato è la Base d'Asta in quanto l’immobile è oggetto di esecuzione immobiliare venduto tramite Asta Giudiziaria. - L'immobile aggiudicato, viene venduto libero e sgombro da persone cose ed ipoteche nello stato di fatto e di diritto in cui si trova. - Non rappresentiamo il Tribunale, ma lavoriamo nell'esclusivo interesse del potenziale acquirente per garantire un acquisto sicuro. - I consulenti di ASTE ITALIA ti assisteranno in tutte le attività dell'iter giudiziario dalla visita dell'immobile fino alla consegna chiavi. - Contatta il nostro Servizio Clienti , i nostri operatori sono a disposizione per chiarire i molteplici dubbi per partecipare alle ASTE.
Dati principali
| Riferimento | AL280/23LU-2506-26-1600 |
| Data annuncio | 12/05/2025 |
| Contratto | Vendita |
| Tipologia | Villa a Schiera |
| Superficie | 197 m2 |
| Locali | più di 5 (2 camere da letto, 4 altro), 2 bagni |
| Piano | 2 totali |
| Numero di terrazzi | 1 |
Caratteristiche
Costi
| Offerta minima | € 25.474 |
| Prezzo al m2 | 129 €/m2 |
Efficienza energetica
| Classe energetica | G |
Planimetrie
Indirizzo e mappa
Vicolo Monzambano 10, Frugarolo
Calcolo mutuo
Prezzo di vendita:
Anticipo
20,00
Mutuo
80,00
Tasso: -+
Rata: 73 al mese
I risultati sono una stima indicativa basata sui dati inseriti e non costituiscono un’offerta finanziaria.
Inserzionista

DOMY ONLINE S.R.L.
Via San Lorenzo 5 Int. 41, Genova
Mostra Telefono
Mostra Cellulare
Chiama
CONTATTA

