Casa indipendente all'asta Via Vaglimondo Alta 15, Incisa Scapaccino
€ 21.462Indipendente - Bifamiliare a Incisa Scapaccino
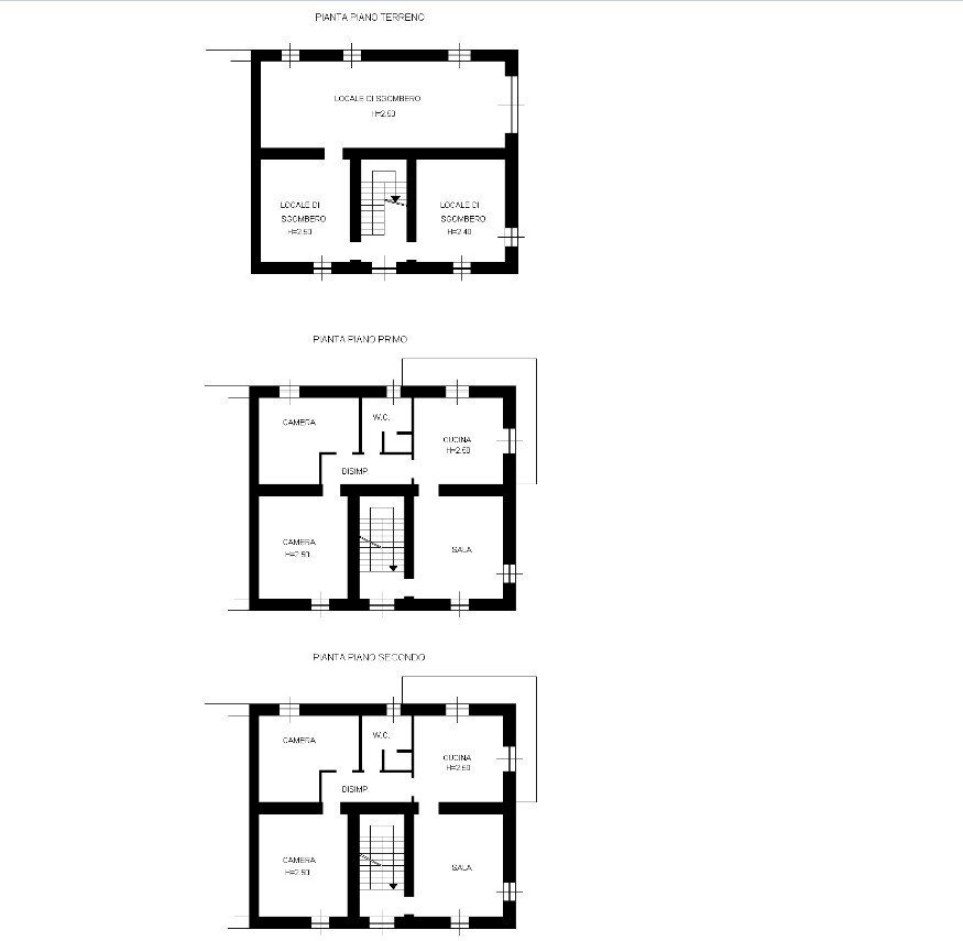
Abitazione sviluppata su tre piani fuori terra con sedime di corte e terreni. Terreno incolto ricadente in zona a tutela ambientale avente forma irregolare giacitura pianeggiante formante corpo unico con il fabbricato di abitazione. Terreno agricolo incolto giacitura pianeggiante formante corpo unico con il fabbricato di abitazione. - Il Prezzo visualizzato è la Base d'Asta in quanto l’immobile è oggetto di esecuzione immobiliare venduto tramite Asta Giudiziaria. - L'immobile aggiudicato, viene venduto libero e sgombro da persone cose ed ipoteche nello stato di fatto e di diritto in cui si trova. - Non rappresentiamo il Tribunale, ma lavoriamo nell'esclusivo interesse del potenziale acquirente per garantire un acquisto sicuro. - I consulenti di ASTE ITALIA ti assisteranno in tutte le attività dell'iter giudiziario dalla visita dell'immobile fino alla consegna chiavi. - Contatta il nostro Servizio Clienti , i nostri operatori sono a disposizione per chiarire i molteplici dubbi per partecipare alle ASTE.
Dati principali
| Riferimento | AL247/24LU-1407-26-1100 |
| Data annuncio | 29/07/2025 |
| Contratto | Vendita |
| Tipologia | Casa indipendente |
| Superficie | 276 m2 |
| Locali | più di 5 (4 camere da letto, 7 altro), 2 bagni |
| Piano | 3 totali |
| Numero di balconi | 1 |
Caratteristiche
Costi
| Offerta minima | € 21.462 |
| Prezzo al m2 | 78 €/m2 |
Efficienza energetica
| Classe energetica | G |
Planimetrie
Indirizzo e mappa
Via Vaglimondo Alta 15, Incisa Scapaccino
Calcolo mutuo
Prezzo di vendita:
Anticipo
20,00
Mutuo
80,00
Tasso: -+
Rata: 61 al mese
I risultati sono una stima indicativa basata sui dati inseriti e non costituiscono un’offerta finanziaria.
Inserzionista

DOMY ONLINE S.R.L.
Via San Lorenzo 5 Int. 41, Genova
Mostra Telefono
Mostra Cellulare
Chiama
CONTATTA

