Agriturismo all'asta Regione Piampodazza 5, Montechiaro d'Acqui
€ 358.594Agriturismo a Montechiaro d'Acqui
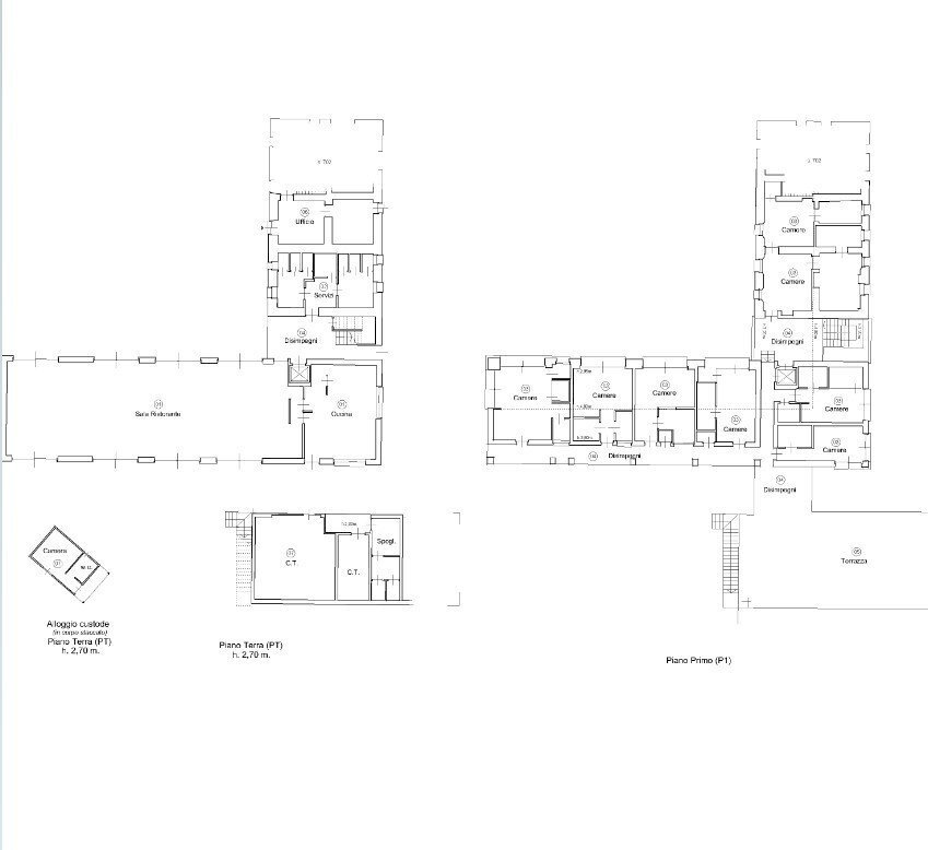
Complesso immobiliare destinato a Resort con destinazione d'uso agrituristica, con accesso privato tramite una strada sterrata delimitata da sbarra, costituito sostanzialmente da tre corpi di fabbrica connessi tra loro, una piscina e un bungalow ad uso alloggio custode, e una estesa area libera di pertinenza sistemata a prato posti in zona agricola del Comune di Montechiaro d’Acqui. - Il Prezzo visualizzato è la Base d'Asta in quanto l’immobile è oggetto di esecuzione immobiliare venduto tramite Asta Giudiziaria. - L'immobile aggiudicato, viene venduto libero e sgombro da persone cose ed ipoteche nello stato di fatto e di diritto in cui si trova. - Non rappresentiamo il Tribunale, ma lavoriamo nell'esclusivo interesse del potenziale acquirente per garantire un acquisto sicuro. - I consulenti di ASTE ITALIA ti assisteranno in tutte le attività dell'iter giudiziario dalla visita dell'immobile fino alla consegna chiavi. - Contatta il nostro Servizio Clienti , i nostri operatori sono a disposizione per chiarire i molteplici dubbi per partecipare alle ASTE.
Dati principali
| Riferimento | AL49/25LU-2107-26-1430 |
| Data annuncio | 29/08/2025 |
| Contratto | Vendita |
| Tipologia | Agriturismo |
| Superficie | 1078 m2 |
| Locali | più di 5 (9 camere da letto, 9 altro), 10 bagni |
| Piano | 3 totali |
Costi
| Offerta minima | € 358.594 |
| Prezzo al m2 | 333 €/m2 |
Efficienza energetica
| Classe energetica | G |
Planimetrie
Indirizzo e mappa
Regione Piampodazza 5, Montechiaro d'Acqui
Calcolo mutuo
Prezzo di vendita:
Anticipo
20,00
Mutuo
80,00
Tasso: -+
Rata: 1.026 al mese
I risultati sono una stima indicativa basata sui dati inseriti e non costituiscono un’offerta finanziaria.
Inserzionista

DOMY ONLINE S.R.L.
Via San Lorenzo 5 Int. 41, Genova
Mostra Telefono
Mostra Cellulare
Chiama
CONTATTA

