Locale Commerciale VIA VITTORIO VENETO, Monopoli
€ 220.000Locale commerciale - 3 Vetrine a Monopoli
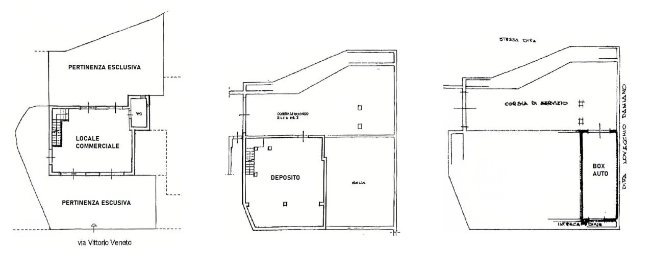
Zona Nord, in zona ben visibile e a forte scorrimento, proponiamo in vendita locale commerciale angolare di 50 mq interni con piazzale di esclusiva proprietà di 60 mq e box auto annesso di 28 mq. Comprensivo della vendita è il deposito posto al piano seminterrato di 80 mq. Il locale gode di esposizione angolare con tre vetrate che affacciano su strada, inoltre è completamente ristrutturato con ottime rifiniture: impianto elettrico automatizzato a norma, luci a led, allarme, paletti e catenacci anti intrusione, luci perimetrali esterne, predisposizione per totem e saracinesche elettriche.LIBERO DA SUBITO!
Dati principali
| Riferimento | 549 |
| Data annuncio | 08/08/2025 |
| Contratto | Vendita |
| Tipologia | Locale Commerciale |
| Superficie | 130 m2 |
| Locali | 3 (3 altro) |
| Piano | 2 totali |
Costi
| Prezzo | 220.000 € |
| Prezzo al m2 | 1.692 €/m2 |
Efficienza energetica
| Classe energetica | Immobile esente da certificazione energetica |
Planimetrie
Indirizzo e mappa
VIA VITTORIO VENETO, Monopoli
Calcolo mutuo
Prezzo di vendita:
Anticipo
20,00
Mutuo
80,00
Tasso: -+
Rata: 629 al mese
I risultati sono una stima indicativa basata sui dati inseriti e non costituiscono un’offerta finanziaria.
Inserzionista
Casa Bianca S.r.l.
Via U. Rattazzi, 35, Monopoli
Mostra Telefono
Chiama
CONTATTA

