Ufficio via cagliostro 476, Modena
€ 170.000Ufficio a Modena
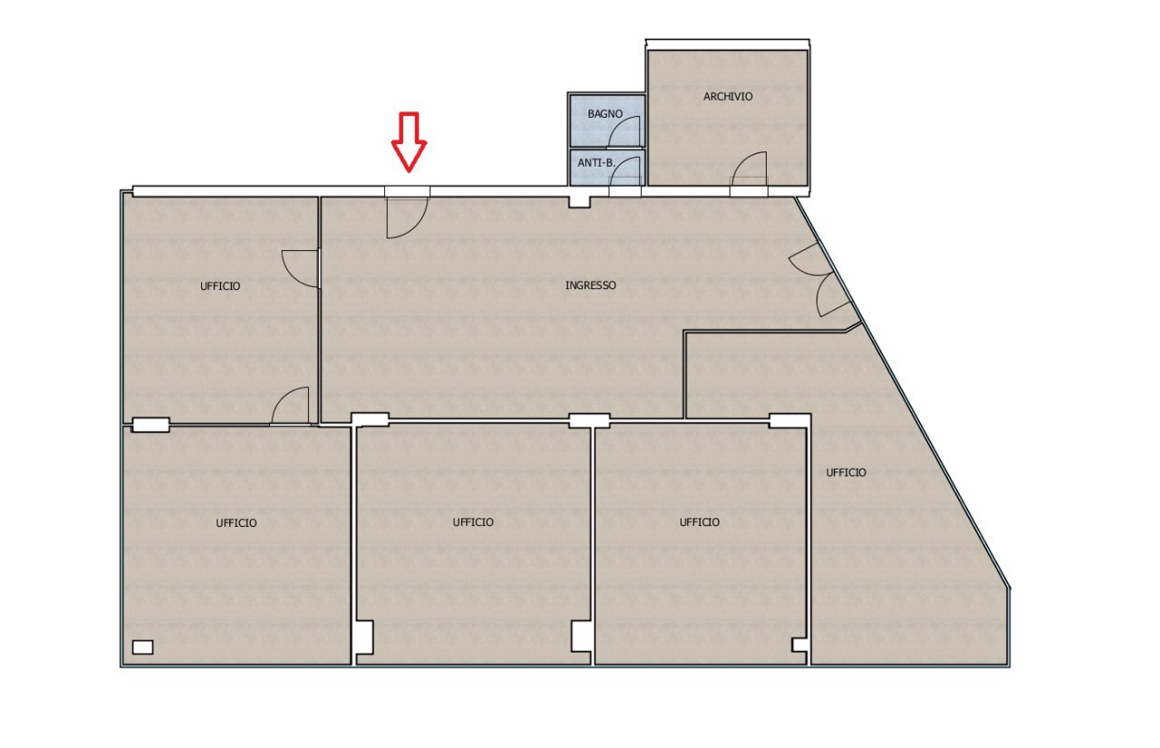
Proponiamo in vendita ufficio da ristrutturare al primo piano servito da ascensore. L'immobile è composto da ingresso con porta blindata su ampio spazio adibito a reception, 4 vani ufficio, ripostiglio e bagno con antibagno. È inoltre presente un secondo ingresso direttamente sull'esterno dell'edificio. Sono presenti 5 splitter, vi è solo da installare una pompa di calore. L'immobile è caratterizzato dalle ampie e luminose vetrate perimetrali presenti in tutto l'ufficio. Completa la proprietà un posto auto interrato. Per maggiori informazioni o per una visita sul luogo potete contattarci al numero 0597877147 o mandare una mail a [email protected]
Dati principali
| Riferimento | 2721 |
| Data annuncio | 09/05/2024 |
| Contratto | Vendita |
| Tipologia | Ufficio |
| Superficie | 200 m2 |
| Locali | più di 5 (7 altro), 1 bagno |
| Piano | 1 totali |
Costi
| Prezzo | 170.000 € |
| Prezzo al m2 | 850 €/m2 |
| Spese condominiali | € 208,00/mese |
Efficienza energetica
| Anno costruzione | 1970 |
| Classe energetica | G |
Planimetrie
Indirizzo e mappa
via cagliostro 476, Modena
Calcolo mutuo
Prezzo di vendita:
Anticipo
20,00
Mutuo
80,00
Tasso: -+
Rata: 486 al mese
I risultati sono una stima indicativa basata sui dati inseriti e non costituiscono un’offerta finanziaria.
Inserzionista

Immobiliare 227 snc di Fabbri Stefano e C.
Via Emilia Centro 227, Modena
Mostra Telefono
Mostra Cellulare
Chiama
CONTATTA

