Quadrilocale Via Aldo Moro 73, Zocca
€ 62.000Appartamento - Quadrilocale a Zocca
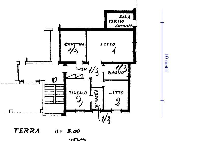
Zocca_Paese: in posizione comoda alla piazza ed ai servizi tutti. Al PIANO_TERRA (senza barriere architettoniche) di piccola palazzina ben abitata e correttamente manutentata nel tempo, VENDESI APPARTAMENTO ARREDATO composto da: ingresso in soggiorno di buon dimensionamento, cucinotto, cantina integrata all’appartamento oggi utilizzata come prolungamento della zona giorno (eventuale terza camera), disimpegno, bagno con doccia e due camere da letto MATRIMONIALI di cui una molto grande. RISCALDAMENTO AUTONOMO, inferiate e cancelletti di sicurezza e zanzariere, tra le dotazioni, mobili di buona fattura ben tenuti, lavatrice e lavastoviglie. APPARTAMENTO LUIMONOSO CON ESPOSIZIONE ANGOLARE. Altezza interna 3metri.
Dati principali
| Riferimento | 3011 |
| Data annuncio | 02/09/2025 |
| Contratto | Vendita |
| Tipologia | Appartamento |
| Superficie | 88 m2 |
| Locali | 4 (3 camere da letto, 1 altro), 1 bagno |
| Piano | 1 totali |
| Arredamento | Completo |
Costi
| Prezzo | 62.000 € |
| Prezzo al m2 | 705 €/m2 |
Efficienza energetica
| Classe energetica | In fase di calcolo |
Planimetrie
Indirizzo e mappa
Via Aldo Moro 73, Zocca
Calcolo mutuo
Prezzo di vendita:
Anticipo
20,00
Mutuo
80,00
Tasso: -+
Rata: 177 al mese
I risultati sono una stima indicativa basata sui dati inseriti e non costituiscono un’offerta finanziaria.
Inserzionista

Immobiliare 227 snc di Fabbri Stefano e C.
Via Emilia Centro 227, Modena
Mostra Telefono
Mostra Cellulare
Chiama
CONTATTA

