Terreno edificabile Santo Stefano di Magra
€ 450.000Terreno edificabile a Zona industriale, Santo Stefano di Magra
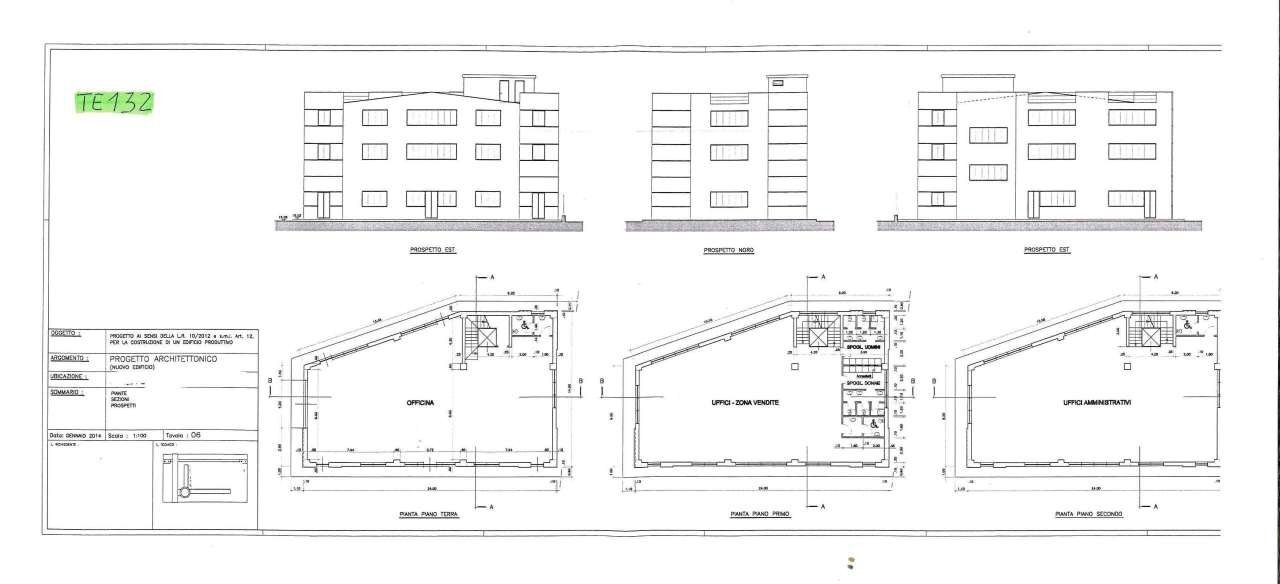
Terreno edificabile artigianale, commerciale e industriale a Santo Stefano. In vendita, vicino al centro commerciale La Fabbrica, a poche centinaia di metri dall'uscita autostradale di Santo Stefano Magra, terreno edificabile di circa 3150 mq, in fronte strada di transito pesante. Il terreno è già stato recintato, per il passaggio e la sosta di container e mezzi pesanti e consolidato adeguatamente con opere di scoticamento e inghiaiamento con stabilizzato. Il terreno in oggetto ha una portata di un carico di 100 tonnellate su sei ruote motrici. Cavidotto perimetrale e posizionamento basi per due torre fari già predisposto. Progetto approvato per edificare un capannone su tre piani per un totale di 900 mq.
Dati principali
| Riferimento | TE132 |
| Data annuncio | 04/12/2017 |
| Contratto | Vendita |
| Tipologia | Terreno edificabile |
| Superficie | 3400 m2 |
| Locali | 1 (1 altro) |
| Piano | 1 totali |
Costi
| Prezzo | 450.000 € |
| Prezzo al m2 | 132 €/m2 |
Efficienza energetica
| Classe energetica | Immobile esente da certificazione energetica |
Indirizzo e mappa
Santo Stefano di Magra
Annuncio senza mappa,
prova a chiedere la posizione all'inserzionista
prova a chiedere la posizione all'inserzionista
Calcolo mutuo
Prezzo di vendita:
Anticipo
20,00
Mutuo
80,00
Tasso: -+
Rata: 1.287 al mese
I risultati sono una stima indicativa basata sui dati inseriti e non costituiscono un’offerta finanziaria.
Inserzionista
Albani Riccardo
Via Sarzana 1029, La Spezia
Mostra Telefono
Chiama
CONTATTA

