Locale Commerciale Via Borgo Rometta Soliera 57, Fivizzano
€ 60.000Locali e fondi commerciali - Bar a Soliera, Fivizzano
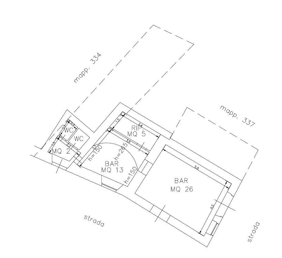
Nel Borgo storico di Soliera, vendesi locale commerciale adibito in passato a Bar composto da 2 locali e servizi igienici. Il locale si compone di tre vetrine che si affacciano sulla strada principale del borgo. L'atività è chiusa da qualche anno ed i locali necessitano di manutenzione straordinaria.
Dati principali
| Riferimento | 6004254 |
| Data annuncio | 14/01/2025 |
| Contratto | Vendita |
| Tipologia | Locale Commerciale |
| Superficie | 70 m2 |
| Locali | 2 (2 altro) |
| Piano | 1 totali |
Costi
| Prezzo | 60.000 € |
| Prezzo al m2 | 857 €/m2 |
Efficienza energetica
| Classe energetica | In fase di calcolo |
Planimetrie
Indirizzo e mappa
Via Borgo Rometta Soliera 57, Fivizzano
Calcolo mutuo
Prezzo di vendita:
Anticipo
20,00
Mutuo
80,00
Tasso: -+
Rata: 172 al mese
I risultati sono una stima indicativa basata sui dati inseriti e non costituiscono un’offerta finanziaria.
Inserzionista

Immobiliare Il Sole
Viale Malaspina 1, Fosdinovo
Mostra Telefono
Mostra Cellulare
Chiama
CONTATTA

