Capannone Via del Pozzo 14, Massa
€ 1.600.000Capannone + Uffici + Piazzale a Romagnano, Massa
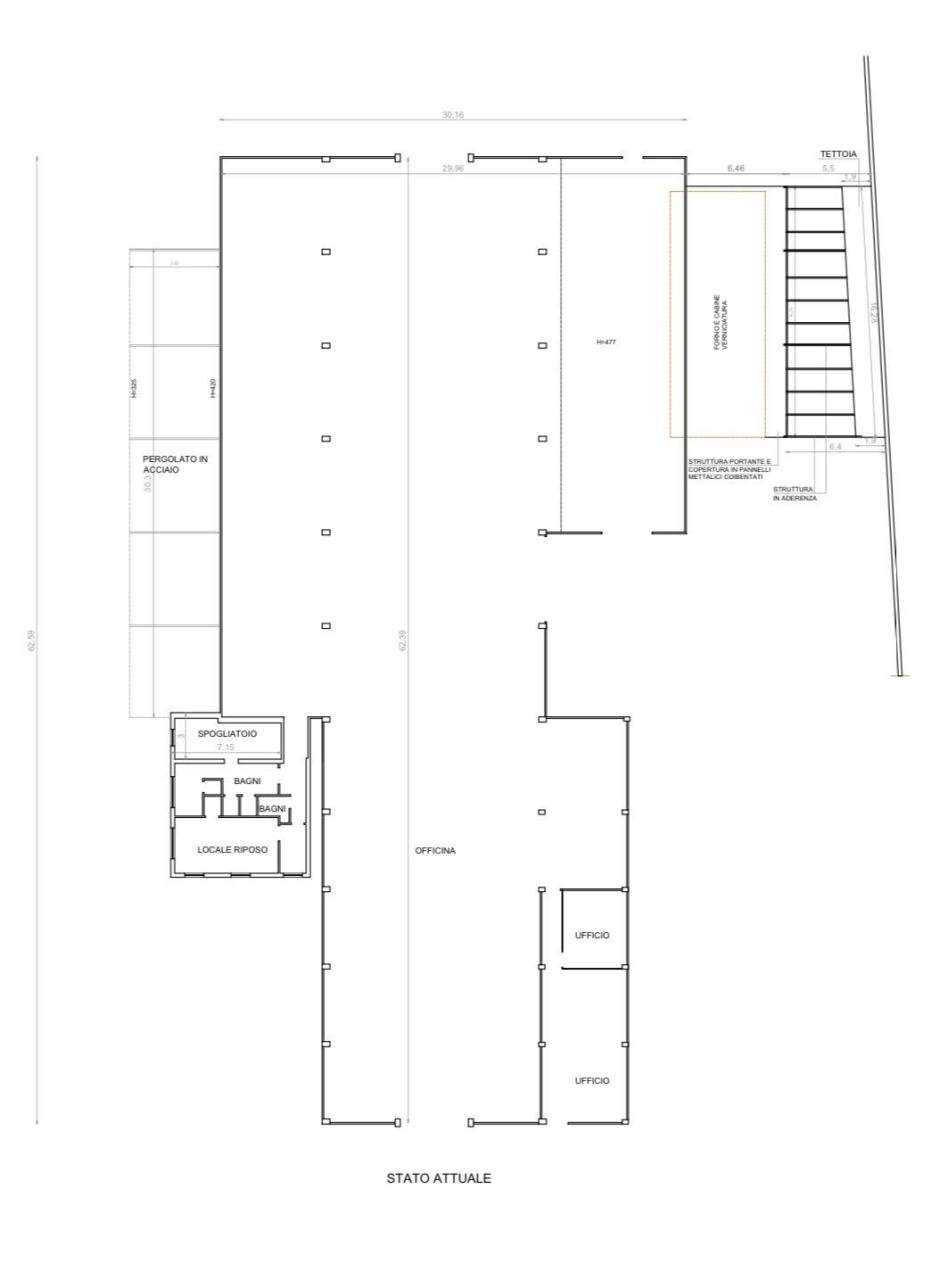
A ROMAGNANO, MASSA, CAPANNONE INDUSTRIALE-ARTIGIANALE CON AREA COPERTA DI CIRCA 1.600 MQ COMPRENSIVA DI UFFICI, SPOGLIATOI E BAGNI, ALTEZZA MASSIMA MT 4,77. SUPERFICE SCOPERTA MQ 3.550 CON PARCHEGGI, PIAZZALE E AREA DI MANOVRA. CATEGORIA CATASTALE D/7. - CR IMMOBILIARE 347 8561740 - Sito web: https://www.immobiliare-cr.it/it/ Facebook: https://www.facebook.com/agenziaCRimmobiliare Idealista: https://www.idealista.it/pro/cr-immobiliare-di-cecchi-roberto/vendita-case/ Immobiliare.it: https://www.immobiliare.it/agenzie-immobiliari/4528/cr-castelnuovo-magra/ - Per tutelare la privacy dei nostri clienti vi informiamo che l’indirizzo è approssimativo e le informazioni e i valori presenti nell’annuncio non costituiscono, in alcun modo, elemento contrattuale. Le informazioni dettagliate e specifiche dell’immobile verranno fornite compilando il form dell’agenzia o contattandoci telefonicamente
Dati principali
| Riferimento | 3309 |
| Data annuncio | 16/03/2024 |
| Contratto | Vendita |
| Tipologia | Capannone |
| Superficie | 1600 m2 |
| Locali | 3 (3 altro), 1 bagno |
| Piano | 1 totali |
| Numero posti auto | 1 |
Costi
| Prezzo | 1.600.000 € |
| Prezzo al m2 | 1.000 €/m2 |
Efficienza energetica
| Anno costruzione | 1978 |
| Classe energetica | Non classificabile |
Planimetrie
Indirizzo e mappa
Via del Pozzo 14, Massa
Calcolo mutuo
Prezzo di vendita:
Anticipo
20,00
Mutuo
80,00
Tasso: -+
Rata: 4.576 al mese
I risultati sono una stima indicativa basata sui dati inseriti e non costituiscono un’offerta finanziaria.
Inserzionista
Chiama
CONTATTA


