Villa Via Salaria 115, Spinetoli
€ 260.000Indipendente - Villa a Pagliare del Tronto, Spinetoli
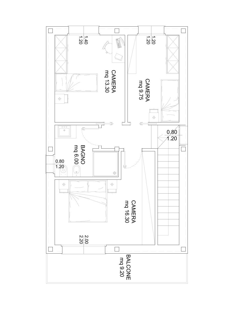
Pagliare - Villino di 140 mq su 2 livelli con soggiorno-cucina, 3 camere e 2 bagni. Le costruzioni saranno realizzate unicamente in bio edilizia, tenendo conto delle caratteristiche del territorio, utilizzando il legno per la struttura portante e blocchi in canapa per la tamponatura esterna. Il mattone in canapa ha contemporaneamente funzione di tamponamento, isolante termico, isolante acustico e regolazione dell'umidità interna, garantendo salute e comfort delle persone che ci abiteranno. Gli impianti utilizzano solo fonti di energia rinnovabile (fotovoltaico e solare termico). La villetta può essere progettata e realizzata in base alle specifiche esigenze del cliente variando i metri abitabili e degli spazi accessori, studiando la funzionalità degli ambienti a seconda del personale modo di vivere la casa.
Dati principali
| Riferimento | 2209-1 |
| Data annuncio | 29/11/2021 |
| Contratto | Vendita |
| Tipologia | Villa |
| Superficie | 145 m2 |
| Locali | più di 5 (6 altro) |
Costi
| Prezzo | 260.000 € |
| Prezzo al m2 | 1.793 €/m2 |
Efficienza energetica
| Classe energetica | Immobile esente da certificazione energetica |
Indirizzo e mappa
Via Salaria 115, Spinetoli
Calcolo mutuo
Prezzo di vendita:
Anticipo
20,00
Mutuo
80,00
Tasso: -+
Rata: 744 al mese
I risultati sono una stima indicativa basata sui dati inseriti e non costituiscono un’offerta finanziaria.
Inserzionista
Chiama
CONTATTA


