Appartamento San Benedetto del Tronto
€ 430.000Appartamento a Conad, San Benedetto del Tronto
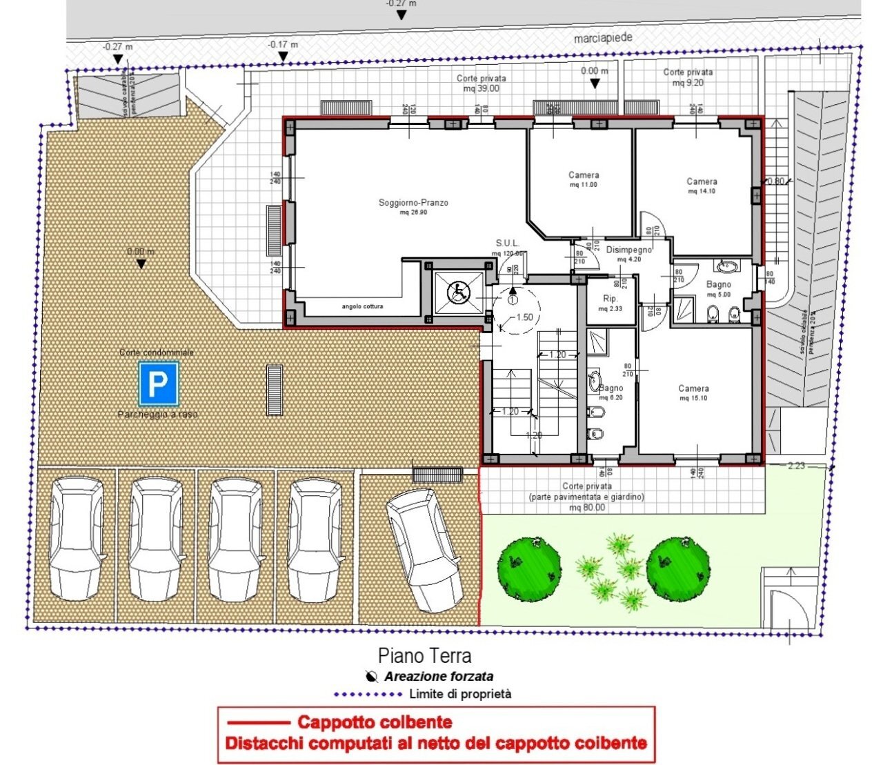
SAN BENEDETTO DEL TRONTO (AP) - ZONA CONAD - in zona residenziale servita a circa 700 mt dal mare, in palazzina di recente costruzione, luminoso piano terra proposto allo stato grezzo interno della superficie coperta di 115 mq circa. L'unità abitativa è dotata di doppio ingresso di cui uno esterno indipendente ed uno condominiale ed è libera su 4 lati. Completano la proprietà: due fondaci, uno di circa 41 mq al piano sottostante e l'altro di circa 45 mq collocato sul lato Ovest ed accessibile con ingresso indipendente dallo scivolo esterno; una corte pavimentata esterna di circa 48 mq; un giardino di circa 80 mq; due posti auto all'interno della corte condominiale. Da progetto, l'appartamento è composto da ampio soggiorno con angolo cottura, 3 camere da letto matrimoniali, 1 bagno con doccia finestrato, 1 bagno e doccia finestrato in una delle camere. L'immobile dispone di predisposizione per impianti autonomi, antifurto e pannello solare per l'acqua calda, cappotto esterno, riscaldamento a pavimento, tapparelle elettriche, caldaia a condensazione, videocitofono, predisposizione aria condizionata, infissi in legno con doppi vetri. Nelle vicinanze sono presenti parchi pubblici, supermercati, banche, scuole, pista ciclabile, varie attività commerciali e fermate autobus. DiLeoImmobiliare riferimento agenzia 3322
Dati principali
| Riferimento | 3322 |
| Data annuncio | 06/11/2015 |
| Contratto | Vendita |
| Tipologia | Appartamento |
| Superficie | 187 m2 |
| Locali | 4 (3 camere da letto, 1 altro), 2 bagni |
| Piano | 2 totali |
Caratteristiche
Costi
| Prezzo | 430.000 € |
| Prezzo al m2 | 2.299 €/m2 |
Efficienza energetica
| Anno costruzione | 2017 |
| Classe energetica | A |
| Indice di prestazione energetica (IPE) | 58.5 kWh/m2 anno |
Planimetrie
Indirizzo e mappa
San Benedetto del Tronto
Annuncio senza mappa,
prova a chiedere la posizione all'inserzionista
prova a chiedere la posizione all'inserzionista
Calcolo mutuo
Prezzo di vendita:
Anticipo
20,00
Mutuo
80,00
Tasso: -+
Rata: 1.230 al mese
I risultati sono una stima indicativa basata sui dati inseriti e non costituiscono un’offerta finanziaria.
Inserzionista

DiLeoImmobiliare
via Pasubio n. 10 piano 2°, San Benedetto del Tronto
Mostra Telefono
Mostra Cellulare
Chiama
CONTATTA

