Capannone Strada Statale 17, Barisciano
€ 290.000Capannone / Fondo a Barisciano
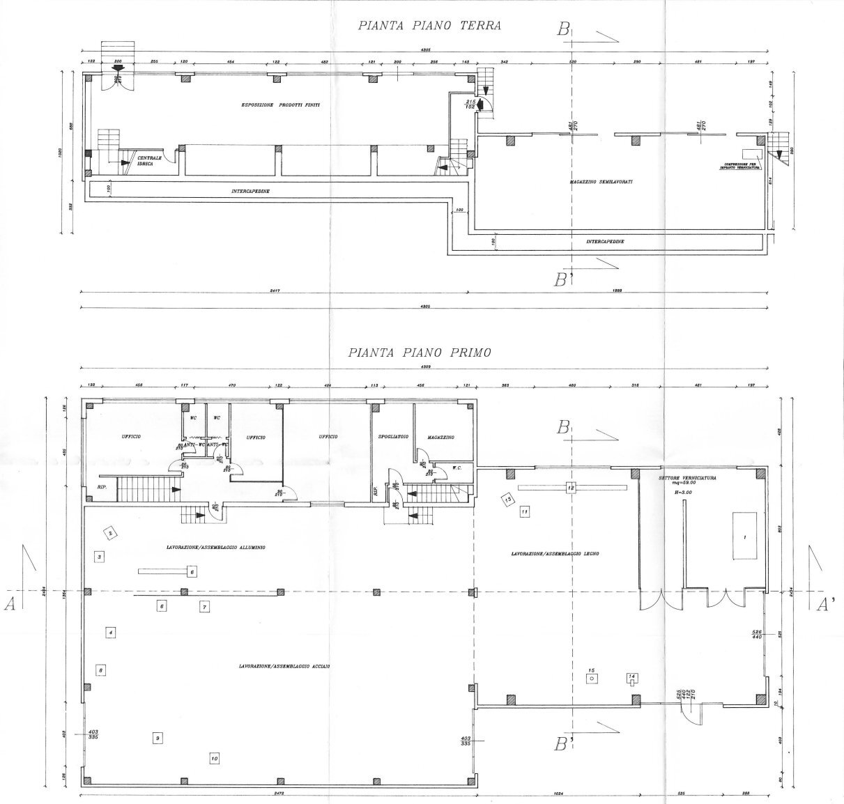
BARISCIANO (AQ) – CAPANNONE DI 1.024 mq in ZONA ARTIGIANALE di Barisciano (AQ) – Capannone a destinazione D8 di circa 1.024 mq, situato lungo la SS17 a circa 15 km da L’Aquila, su un’area di oltre 4.700 mq, distribuito su più livelli: al piano terra magazzino e sala espositiva per complessivi 250 mq circa e tettoie per circa 200 mq; al piano primo uffici per 150 mq e area lavorazione per altri 625 mq. L’immobile è stato realizzato in due tempi. La prima costruzione è del 1993 con struttura portante realizzata in cls gettato in opera con tamponature e copertura in pannelli prefabbricati; l’ampliamento del 1997 è stato invece realizzato interamente con strutture prefabbricate. In passato è stato adibito a deposito. L’ampia corte esterna è dotata di 4 accessi carrabili ed è completamente recintata. L’immobile necessita di un’attività tecnica per la regolarizzazione di leggere difformità che saranno sistemate a cura e spese della parte venditrice prima del rogito. Capacità edificatoria residua. L'acquisto gode delle agevolazioni fiscali previste dall'articolo 35, comma 10-ter.1, del decreto-legge 4 luglio 2006, n. 223 che prevedono l'applicazione delle imposte di registro, ipotecaria e catastale in misura fissa. Possibilità di REVERSE CHARGE. Rif. 6233 DiLeoImmobilare
Dati principali
| Riferimento | 6233 |
| Data annuncio | 22/04/2022 |
| Contratto | Vendita |
| Tipologia | Capannone |
| Superficie | 2000 m2 |
| Locali | 5 (5 altro) |
| Piano | 2 totali |
Costi
| Prezzo | 290.000 € |
| Prezzo al m2 | 145 €/m2 |
Efficienza energetica
| Anno costruzione | 1993 |
| Classe energetica | G |
Planimetrie
Indirizzo e mappa
Strada Statale 17, Barisciano
Calcolo mutuo
Prezzo di vendita:
Anticipo
20,00
Mutuo
80,00
Tasso: -+
Rata: 829 al mese
I risultati sono una stima indicativa basata sui dati inseriti e non costituiscono un’offerta finanziaria.
Inserzionista

DiLeoImmobiliare
via Pasubio n. 10 piano 2°, San Benedetto del Tronto
Mostra Telefono
Mostra Cellulare
Chiama
CONTATTA

