Capannone Acquaviva Picena
€ 500.000Capannone / Fondo a Acquaviva Picena
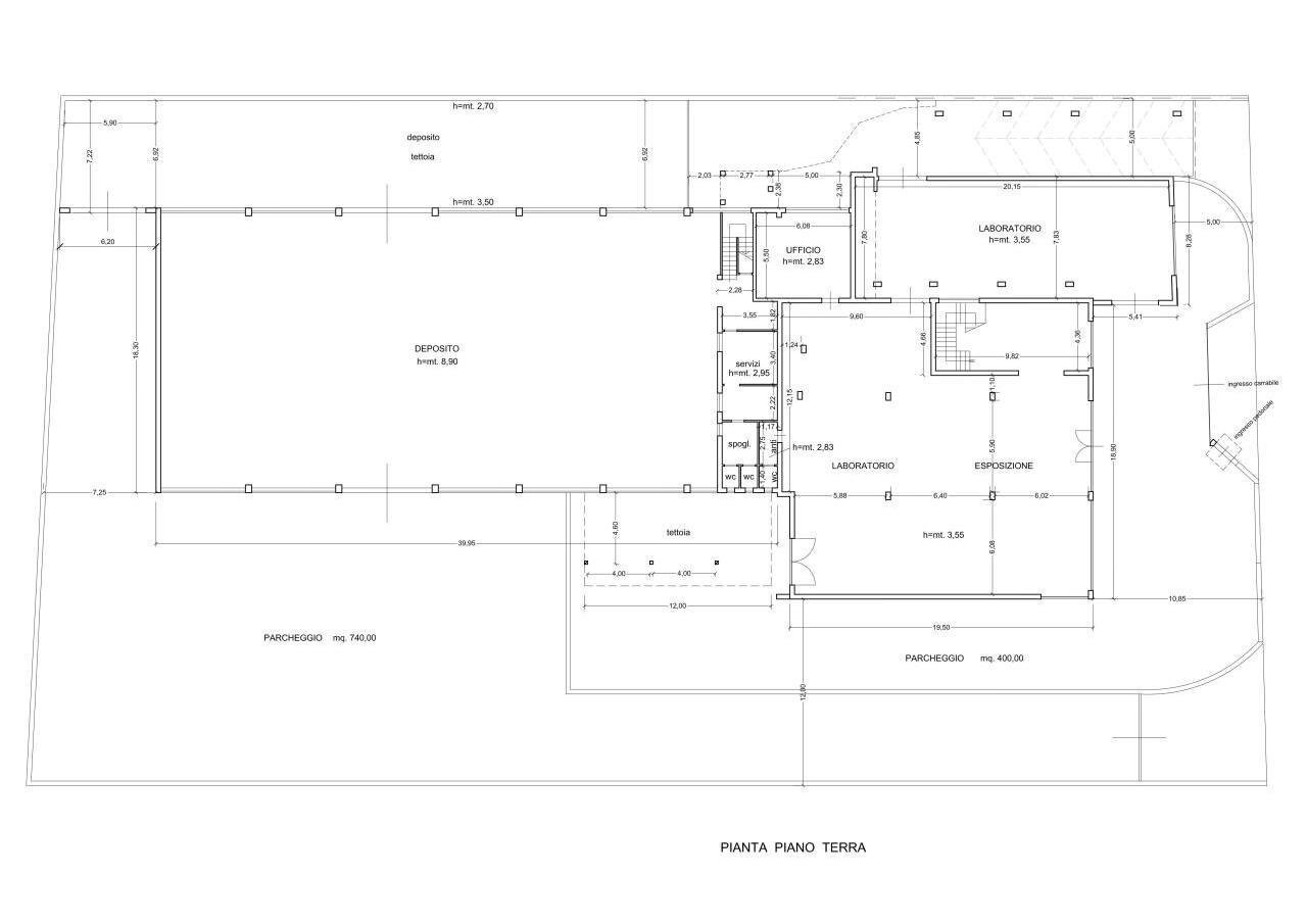
ACQUAVIVA PICENA - Zona Artigianale - In posizione panoramica, edificio di oltre mq 2000 coperti composto da capannone di recente costruzione con annessa palazzina uffici ed ampia zona esposizione. Ha ottime rifiniture, è di recente realizzazione e, al piano secondo dell'edificio direzionale, vi è zona al grezzo interno da rifinire ad abitazione o uffici. Dispone di piazzale e parcheggi per un totale di mq. 1280 oltre rampe e 3 ingressi carrabili. La zona uffici ed esposizione ha una superficie di circa mq. 1155 con terrazzi per mq. 180 mentre l'area a laboratorio e deposito, con altezza massima m. 9, è di circa mq. 1050. Possibile anche rent to buy o semplice locazione. Rif. 6679 DiLeoImmobiliare
Dati principali
| Riferimento | 6679 |
| Data annuncio | 15/02/2024 |
| Contratto | Vendita |
| Tipologia | Capannone |
| Superficie | 2050 m2 |
| Locali | più di 5 (10 altro), 4 bagni |
| Piano | 3 totali |
| Numero di terrazzi | 1 |
| Numero posti auto | 1 |
Costi
| Prezzo | 500.000 € |
| Prezzo al m2 | 244 €/m2 |
Efficienza energetica
| Anno costruzione | 2007 |
| Classe energetica | G |
Planimetrie
Indirizzo e mappa
Acquaviva Picena
Annuncio senza mappa,
prova a chiedere la posizione all'inserzionista
prova a chiedere la posizione all'inserzionista
Calcolo mutuo
Prezzo di vendita:
Anticipo
20,00
Mutuo
80,00
Tasso: -+
Rata: 1.430 al mese
I risultati sono una stima indicativa basata sui dati inseriti e non costituiscono un’offerta finanziaria.
Inserzionista

DiLeoImmobiliare
via Pasubio n. 10 piano 2°, San Benedetto del Tronto
Mostra Telefono
Mostra Cellulare
Chiama
CONTATTA

