Appartamento Viale dei Pini, Monte Compatri
€ 125.000Appartamento - Trilocale a Casale Ricci, Monte Compatri
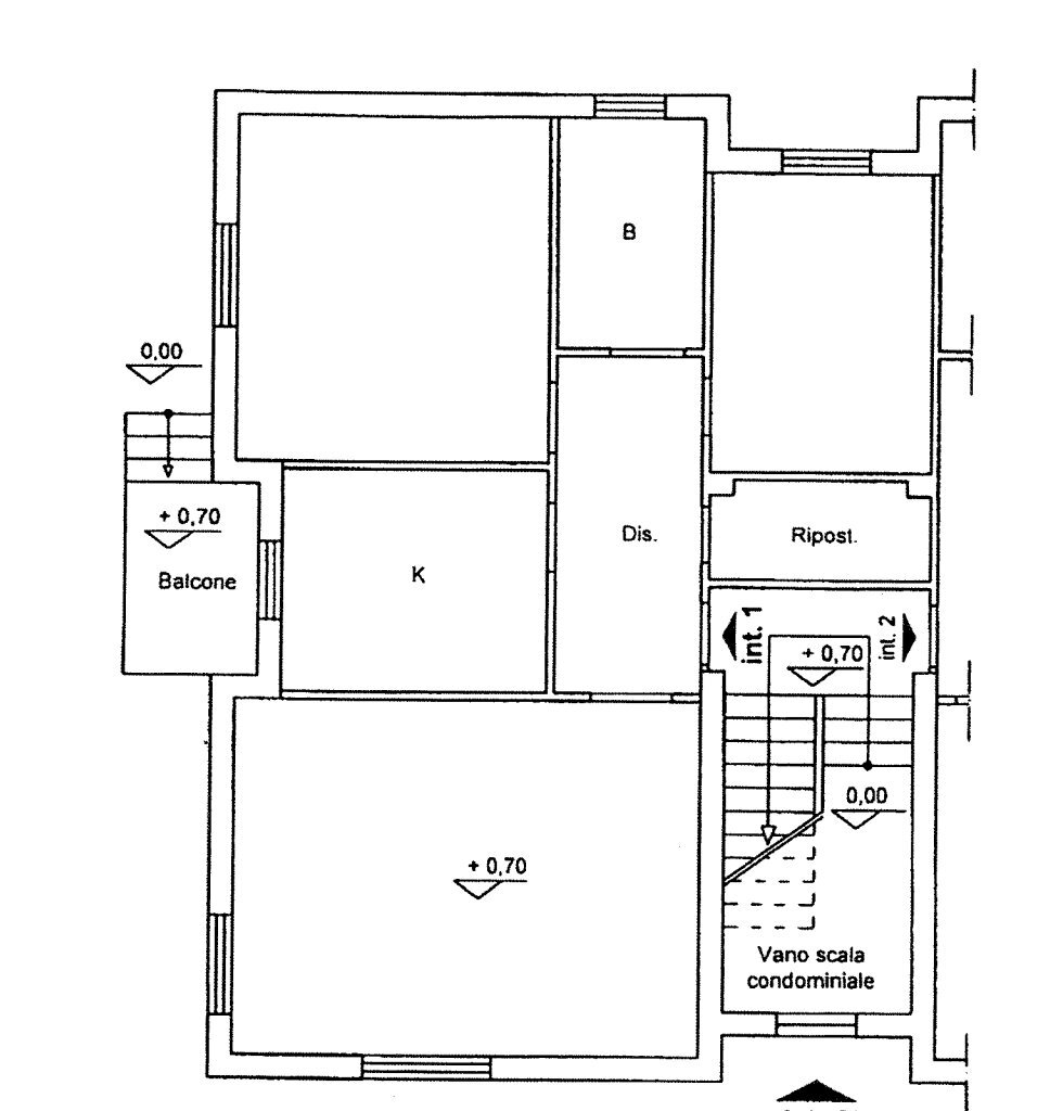
CasaMercato vende APPARTAMENTO, a Monte Compatri, Viale dei Pini, vicino ad ogni tipo di servizio. QUANTITA': ampio soggiorno, 2 camere, cucina abitabile, bagno, disimpegno, ripostiglio e balcone. QUALITA': buono stato, abitabile. Portone blindato. Termoautonomo, gas GPL. Infissi con doppio vetro, camino funzionante,Vani comodi. Vicino a tutti i servizi. DATI CATASTALI: abitazione rendita euro 335,70, mq 98. PAGAMENTO: anche con finanziamento ipotecario al 95 % e con ammortamento sino a 30 anni. CasaMercato è convenzionato con primarie società di mediazione creditizia e può offrire una consulenza gratuita su ogni tipo di strumento finanziario teso all'acquisto di immobili: chiedi informazioni alla visita. PERMUTA: se vuoi chiedi del servizio gratuito di permuta indiretta. APE: G CODICE: MTC46
Dati principali
| Riferimento | MTC46 |
| Data annuncio | 18/07/2025 |
| Contratto | Vendita |
| Tipologia | Appartamento |
| Superficie | 110 m2 |
| Locali | 5 (3 camere da letto, 2 altro), 1 bagno |
| Piano | 1 totali |
| Numero di balconi | 1 |
Costi
| Prezzo | 125.000 € |
| Prezzo al m2 | 1.136 €/m2 |
Efficienza energetica
| Anno costruzione | 1978 |
| Classe energetica | G |
Planimetrie
Indirizzo e mappa
Viale dei Pini, Monte Compatri
Calcolo mutuo
Prezzo di vendita:
Anticipo
20,00
Mutuo
80,00
Tasso: -+
Rata: 357 al mese
I risultati sono una stima indicativa basata sui dati inseriti e non costituiscono un’offerta finanziaria.
Inserzionista
CasaMercato
Corso del Popolo 51, Grottaferrata
Mostra Telefono
Chiama
CONTATTA

