Appartamento Via Giuseppe Mazzini, Pontedera
€ 290.000Appartamento - Pentalocale a Centro, Pontedera
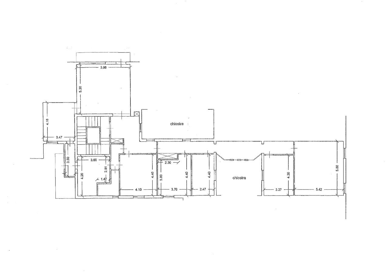
POOINTEDERA CENTRALISSIMO: L'Agenzia Immobiliare AIA propone in vendita appartamento di ampia metratura ubicato a pochi passi dal Corso G. Matteotti. L'abitazione, posta al secondo piano di fabbricato trifamiliare, è servita da ascensore e si compone di ampio ingresso, salone con balcone, sala da pranzo, cucina con adiacente terrazzina abitabile, bagno e ripostiglio/lavanderia. La zona notte si compone di un grande disimpegno con caratteristica bow-window che affaccia su chiostra interna, che distribuisce le quattro camere da letto ed un ampio bagno con vasca. Completa la soluzione ampia soffitta uso ripostiglio al terzo ed ultimo piano del fabbricato. Pur necessitando di interventi di rinnovamento l'abitazione si presenta in buone condizioni generali e con gradevoli affacci su zone caratteristiche del centro storico. Classe Energ. "G" - 322,00 kWh/m2 anno. €uro 290.000,00 Rif. AP109
Dati principali
| Riferimento | AP109 |
| Data annuncio | 17/01/2023 |
| Contratto | Vendita |
| Tipologia | Appartamento |
| Superficie | 220 m2 |
| Locali | più di 5 (4 camere da letto, 5 altro), 2 bagni |
| Piano | 1 totali |
| Numero di terrazzi | 1 |
| Numero di balconi | 1 |
Costi
| Prezzo | 290.000 € |
| Prezzo al m2 | 1.318 €/m2 |
Efficienza energetica
| Classe energetica | G |
Planimetrie
Indirizzo e mappa
Via Giuseppe Mazzini, Pontedera
Calcolo mutuo
Prezzo di vendita:
Anticipo
20,00
Mutuo
80,00
Tasso: -+
Rata: 829 al mese
I risultati sono una stima indicativa basata sui dati inseriti e non costituiscono un’offerta finanziaria.
Inserzionista

Immobiliare AIA Srl
P.zza Martiri della Libertà , 20, Pontedera
Mostra Telefono
Chiama
CONTATTA

