Ufficio Via Pellegrini s, Novara
€ 178.000Ufficio a San Martino, Novara
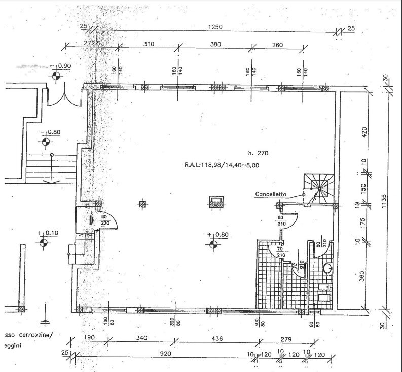
San Martino vicinanze corso torino, in recente palazzina appartamento uso ufficio al piano rialzato di mq 155 composto da unico locale e bagno + locale archivio al piano seminterrato di mq 78 collegati da scala interna. Termoautonomo e. Poss box. € 178.000 +iva Classe energetica C epi 33,1091 SIM IMMOBILIARE tante case una sola agenzia!!! Visita il nostro sito www.simimmobiliare.it Prenota la tua visita anche con WhatsApp al 333-6071181
Dati principali
| Riferimento | 567 |
| Data annuncio | 17/01/2010 |
| Contratto | Vendita |
| Tipologia | Ufficio |
| Superficie | 233 m2 |
| Locali | 2 bagni |
| Piano | 2 totali |
Costi
| Prezzo | 178.000 € |
| Prezzo al m2 | 764 €/m2 |
Efficienza energetica
| Classe energetica | C |
Planimetrie
Indirizzo e mappa
Via Pellegrini s, Novara
Calcolo mutuo
Prezzo di vendita:
Anticipo
20,00
Mutuo
80,00
Tasso: -+
Rata: 509 al mese
I risultati sono una stima indicativa basata sui dati inseriti e non costituiscono un’offerta finanziaria.
Inserzionista

SIM IMMOBILIARE S.R.L.
corso torino 13e, Novara
Mostra Telefono
Chiama
CONTATTA

