Ufficio Scali D'Azeglio 10, Livorno
€ 1.800 al meseUfficio - direzionale a Centro, Livorno
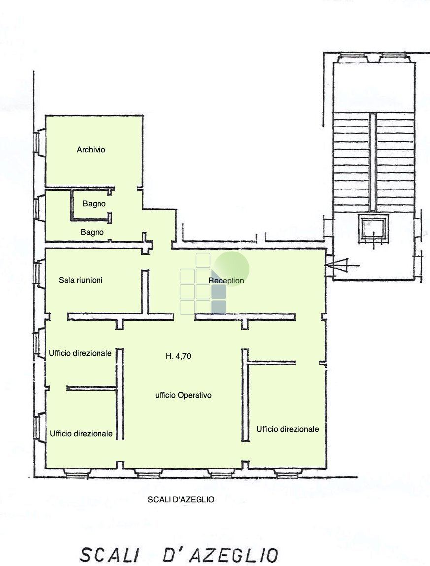
AFFITTO GRANDE UFFICIO DIREZIONALE CON SPLENDIDA VISTA SUI CANALI Euro 1800 mese + iva Nel pieno centro della città di Livorno, in palazzo storico dell' 800, affittiamo grande appartamento uso ufficio in posizione d'angolo con splenda vista sui canali e porto. Circa 210 mq con grande ingresso reception, ampia sala utilizzata ad ufficio operativo, grande sala riunioni, 3 uffici direzionali, doppi servizi e stanza archivio. MOLTO BELLO DA VEDERE. Riferimento ufficio n. 2805
Dati principali
| Riferimento | 2805 |
| Data annuncio | 08/10/2020 |
| Contratto | Affitto |
| Tipologia | Ufficio |
| Superficie | 210 m2 |
| Locali | più di 5 (7 altro), 2 bagni |
| Piano | 1 totali |
Costi
| Prezzo | 1.800 € al mese |
Efficienza energetica
| Anno costruzione | 1900 |
| Classe energetica | G |
Planimetrie
Indirizzo e mappa
Scali D'Azeglio 10, Livorno
Inserzionista

INTERMEDIA IMMOBILIARE
Via Niccolò Machiavelli, 47, Livorno
Mostra Telefono
Mostra Cellulare
Chiama
CONTATTA

