Ufficio Viale Padre Nicola MagriMagri 81, Livorno
€ 70.000Ufficio - operativo a Picchianti, Livorno
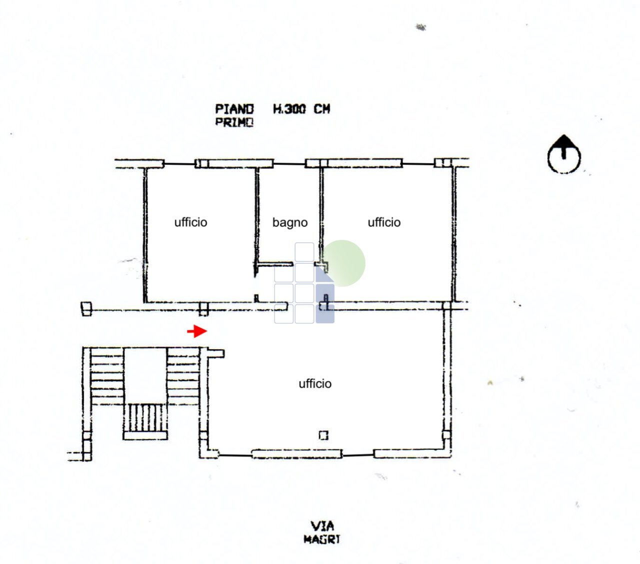
ZONA PICCHIANTI VENDITA UFFICIO ad Euro 70.000. Poco più di 100 mq, in palazzo fine anni 90, piano primo di piccolo palazzo con sole 4 unità immobiliari, proponiamo ufficio cat.A/10 con ottima disposizione interna, oltre l'ingresso troviamo un grande vano di circa 45 mq., divisibile in due, con tre ampie finestre, più altri due grandi stanze direzionali e bagno, tutto in buone condizioni, ma da rivedere negli impianti. PREZZO TRATTABILE OCCASIONE DA NON PERDERE Riferimento annuncio n. 3216
Dati principali
| Riferimento | 3216 |
| Data annuncio | 30/08/2023 |
| Contratto | Vendita |
| Tipologia | Ufficio |
| Superficie | 110 m2 |
| Locali | 3 (3 altro), 1 bagno |
| Piano | 1 totali |
Costi
| Prezzo | 70.000 € |
| Prezzo al m2 | 636 €/m2 |
| Spese condominiali | € 30,00/mese |
Efficienza energetica
| Anno costruzione | 1998 |
| Classe energetica | G |
Planimetrie
Indirizzo e mappa
Viale Padre Nicola MagriMagri 81, Livorno
Calcolo mutuo
Prezzo di vendita:
Anticipo
20,00
Mutuo
80,00
Tasso: -+
Rata: 200 al mese
I risultati sono una stima indicativa basata sui dati inseriti e non costituiscono un’offerta finanziaria.
Inserzionista

INTERMEDIA IMMOBILIARE
Via Niccolò Machiavelli, 47, Livorno
Mostra Telefono
Mostra Cellulare
Chiama
CONTATTA

