Capannone Via Pera 33, Livorno
€ 1.800 al meseCapannone - D/1 a Shangay, Livorno
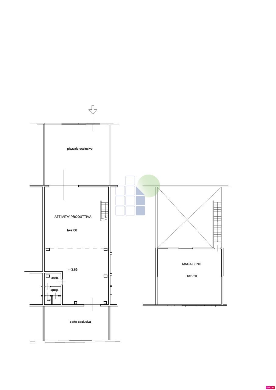
CAPANNONE IN AFFITTO ZONA NORD LIVORNO ad Euro 1.800 mese. Categoria D/1, circa 200 mq. interni più 100 mq. di soppalco, 40 mq. di corte e 100 mq. di piazzale privato recintato. In Zona Artigianale ed in complesso con grande parcheggio auto e facilità di movimentazione bilici, proponiamo la locazione di capannone in perfette condizioni, sempre utilizzato come magazzino. Il vano principale, ottimo come deposito o lavorazione, è molto luminoso e con un altezza di 7 metri, dallo stesso e tramite scala si accede al piano soppalco completamente finestrato dove poter collocare una zona uffici. I servizi con lo spogliatoio sono al piano terra. Comoda corte sl retro. Riferimento annuncio n. 3477
Dati principali
| Riferimento | 3477 |
| Data annuncio | 30/09/2025 |
| Contratto | Affitto |
| Tipologia | Capannone |
| Superficie | 300 m2 |
| Locali | 2 (2 altro), 1 bagno |
| Piano | 1 totali |
| Numero posti auto | 1 |
Costi
| Prezzo | 1.800 € al mese |
Efficienza energetica
| Anno costruzione | 2000 |
| Classe energetica | G |
Planimetrie
Indirizzo e mappa
Via Pera 33, Livorno
Inserzionista

INTERMEDIA IMMOBILIARE
Via Niccolò Machiavelli, 47, Livorno
Mostra Telefono
Mostra Cellulare
Chiama
CONTATTA

