Locale Commerciale Via W. I. Uljanow Detto Lenin 47, Corciano
€ 39.000Negozio commerciale - Una vetrina a Ellera, Corciano
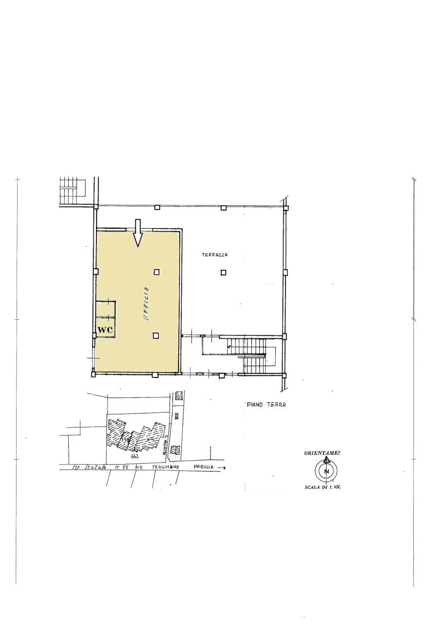
ELLERA DI CORCIANO : nella zona piu' centrale e commerciale di Ellera, in edificio della fine degli anni '70, dotato di ampio parcheggio riservato (chiuso con sbarra), proponiamo in vendita questo locale commerciale di circa 65 mq (categoria c/1) con ingresso indipendente posto al piano terra ed attualmente indiviso, nella sua metratura interna, ma con possibilita' di ricavare 2/3 locali con finestra. Stato interno da rivedere. L'immobile e' ideale per una attivita' di ambulatorio, uffici o similari. Prezzo di richiesta Euro 39.000,00 ( Rif. E71R ) .
Dati principali
| Riferimento | E71R |
| Data annuncio | 03/07/2024 |
| Contratto | Vendita |
| Tipologia | Locale Commerciale |
| Superficie | 64 m2 |
| Locali | 1 (1 altro), 1 bagno |
| Piano | 5 totali |
Costi
| Prezzo | 39.000 € |
| Prezzo al m2 | 609 €/m2 |
Efficienza energetica
| Anno costruzione | 1977 |
| Classe energetica | In fase di calcolo |
Planimetrie
Indirizzo e mappa
Via W. I. Uljanow Detto Lenin 47, Corciano
Calcolo mutuo
Prezzo di vendita:
Anticipo
20,00
Mutuo
80,00
Tasso: -+
Rata: 112 al mese
I risultati sono una stima indicativa basata sui dati inseriti e non costituiscono un’offerta finanziaria.
Inserzionista
Chiama
CONTATTA


