Terreno edificabile Strada del Trebbio 2, Perugia
€ 79.000Terreno Edificabile Residenziale a Periferia, Perugia
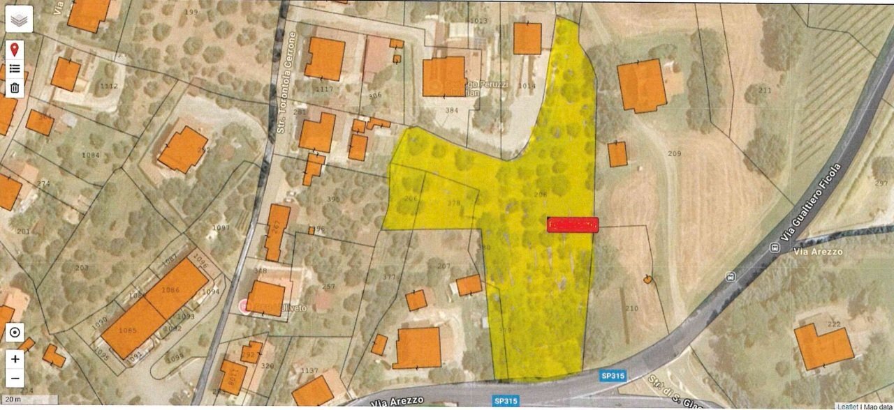
FONTIGNANO : tra Perugia e Citta' Della Pieve (che distano meno di 20 minuti), proprio in entrata (venendo da Perugia) nel piccolo borgo umbro di Fontignano, che custodisce le spoglie del "divin pittore" seicentesco, Pietro Vannucci, detto "il perugino", proponiamo in vendita questo bel lotto di terreno di oltre 4700 mq, di cui circa 1250 edificabili (b3), per una volumetria abitativa di 930 metri cubi (oltre 200 mq calpestabili). Bellissima e comoda posizione dominante, con servizi e Strada Pievaiola vicinissimi. Presenti oltre 70 piante di ulivo all'interno del lotto. Prezzo interessante! ( Rif. T51R ) .
Dati principali
| Riferimento | T51R |
| Data annuncio | 18/06/2025 |
| Contratto | Vendita |
| Tipologia | Terreno edificabile |
| Superficie | 4732 m2 |
| Locali | 1 (1 altro) |
| Piano | 1 totali |
Costi
| Prezzo | 79.000 € |
| Prezzo al m2 | 17 €/m2 |
Efficienza energetica
| Classe energetica | Immobile esente da certificazione energetica |
Planimetrie
Indirizzo e mappa
Strada del Trebbio 2, Perugia
Calcolo mutuo
Prezzo di vendita:
Anticipo
20,00
Mutuo
80,00
Tasso: -+
Rata: 226 al mese
I risultati sono una stima indicativa basata sui dati inseriti e non costituiscono un’offerta finanziaria.
Inserzionista
Chiama
CONTATTA


