Casale Via San Gemma Galgani 4, Pescaglia
€ 850.000Casa colonica - ristrutturata a Pescaglia
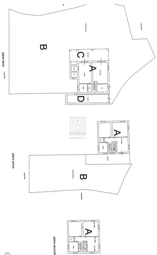
IA01915 - CASA COLONICA CON PISCINA - Essegi Immobiliare propone in vendità caratteristico casolare TOSCANO, completamente ristrutturato, con piscina e terreno, posizione panoramica a meno di 30 minuti dal centro storico di Lucca. Al piano terra ampio porticato con forno a legna, ingresso, cucina in muratura, soggiorno con camino, ripostiglio e bagno; al piano primo, due camere matrimoniali, ampio disimpegno (o terza camera) con accesso a giardino esterno sopraelevato, guardaroba e bagno; il piano secondo speculare al piano primo.Locale tecnico/ lavanderia al piano terra con accesso esterno, oltre scannafosso/cantina di 30 mq. Piscina 12x6 realizzata a regola d'arte nel 2020. La proprietà si presenta in perfette condizioni, accogliente, con vista mozza fiato, facilmente raggiungibile: da vedere! Richiesta Euro 850.000,00 NB. Avvisiamo che la localizzazione dell’immobile è approssimativa: l’indirizzo e la posizione sulla mappa non corrispondono alla sua esatta ubicazione
Dati principali
| Riferimento | IA01915 |
| Data annuncio | 18/10/2022 |
| Contratto | Vendita |
| Tipologia | Casale |
| Superficie | 250 m2 |
| Locali | più di 5 (6 camere da letto, 5 altro), 3 bagni |
| Piano | 1 totali |
| Numero posti auto | 1 |
Caratteristiche
Costi
| Prezzo | 850.000 € |
| Prezzo al m2 | 3.400 €/m2 |
Efficienza energetica
| Classe energetica | G |
Planimetrie
Indirizzo e mappa
Via San Gemma Galgani 4, Pescaglia
Calcolo mutuo
Prezzo di vendita:
Anticipo
20,00
Mutuo
80,00
Tasso: -+
Rata: 2.431 al mese
I risultati sono una stima indicativa basata sui dati inseriti e non costituiscono un’offerta finanziaria.
Inserzionista

Essegi Immobiliare S.r.l.
Viale Pacini 115, Lucca
Mostra Telefono
Chiama
CONTATTA

