Villa Via delle Ville Prima, Lucca
€ 495.000Villa - Singola a Nord, Lucca
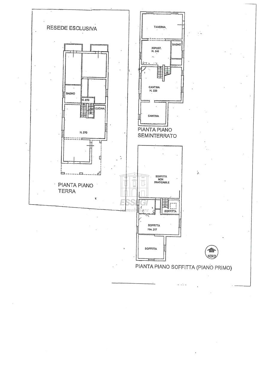
IA03716 - VILLA SINGOLA IN OTTIME CONDIZIONI A tre km da Lucca direzione nord, in contesto residenziale, tranquillo e lontano da strade primarie, Essegi Immobiliare propone in vendita villa singola di recente costruzione, realizzata da impresa artigiana locale nel 2003, disposta su piani sfalsati per complessivi mq 240 circa, corredata da giardino privato di circa 300 mq ben curato e da due posti auto. Composizione, al piano interrato: due locali uso cantina, oltre scala di collegamento con il piano seminterrato (finestrato) costituito da: ampia taverna con camino, ove è stata allestita una cucina con possibilità di accedere al giardino, bagno e ripostiglio; al piano terra: porticato d' invito all' abitazione, ingresso, salone, pranzo cucina, oltre scala di collegamento con il reparto notte che consta di: tre camere e bagno, oltre due terrazzi. A completamento mansarda che costituita da: due vani ove è possibile realizzare la quarta camera, uno studio e k nsta di: due va Posta in contesto residenziale, lontano dal traffico, la villa in oggetto si compone al piano seminterrato di: due locali ad uso cantina, oltre vano scala di collegamento con il piano sfalsato composto da: ripostiglio, bagno con antibagno, ampia taverna con camino, ove è stata allestita la cucina, con possibilità di accedere al giardino, oltre vano scala di collegamento con il piano terra che consta di: un ampio porticato d' invito all' abitazione, salone, pranzo-cucina, oltre vano scala di collegamento con il reparto notte, composto da: tre ampie camere, bagno e due terrazzi; al piano mansardato: due vani ove è possibile realizzare una quarta camera, uno studio e ripostiglio predisposto per bagno di servizio. Oggetto degno di nota. Richiesta € 495.000 NB. Avvisiamo che la localizzazione dell’immobile è approssimativa: l’indirizzo e la posizione sulla mappa non corrispondono alla sua esatta ubicazione.
Dati principali
| Riferimento | IA03716 |
| Data annuncio | 09/09/2023 |
| Contratto | Vendita |
| Tipologia | Villa |
| Superficie | 270 m2 |
| Locali | più di 5 (4 camere da letto, 6 altro), 3 bagni |
| Piano | 3 totali |
| Numero di terrazzi | 1 |
| Numero posti auto | 1 |
Caratteristiche
Costi
| Prezzo | 495.000 € |
| Prezzo al m2 | 1.833 €/m2 |
Efficienza energetica
| Anno costruzione | 2003 |
| Classe energetica | G |
Planimetrie
Indirizzo e mappa
Via delle Ville Prima, Lucca
Calcolo mutuo
Prezzo di vendita:
Anticipo
20,00
Mutuo
80,00
Tasso: -+
Rata: 1.416 al mese
I risultati sono una stima indicativa basata sui dati inseriti e non costituiscono un’offerta finanziaria.
Inserzionista

Essegi Immobiliare S.r.l.
Viale Pacini 115, Lucca
Mostra Telefono
Chiama
CONTATTA

