Locale Commerciale Traversa I Via delle Fornacette 109, Lucca
€ 800.000Capannone - Commerciale a Lucca
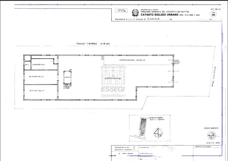
UF03569 - CAPANNONE COMMERCIALE SAN CONCORDIO - Essegi Immobiliare propone in vendita esclusiva un capannone commerciale a circa 1 km dal casello autostradale di Lucca Est ed a 1,5 km dalle mura della città. Il capannone, di mq 800,è corredato da terreno su 4 lati con un bel piazzale antistante. E' stato ristrutturato con interventi di rifacimento del tetto con linea vita e cappotto termico. Ripavimentato internamente con cemento. Impianto elettrico nuovo. Per la sua posizione si presta come punto di smistamento, deposito merci e anche per attività di vendita al dettaglio. Richiesta € 800.000. N.B. la localizzazione non è esatta per motivi di privacy
Dati principali
| Riferimento | UF03569 |
| Data annuncio | 13/12/2023 |
| Contratto | Vendita |
| Tipologia | Locale Commerciale |
| Superficie | 800 m2 |
| Locali | 2 (2 altro) |
| Piano | 1 totali |
Costi
| Prezzo | 800.000 € |
| Prezzo al m2 | 1.000 €/m2 |
Efficienza energetica
| Classe energetica | G |
Planimetrie
Indirizzo e mappa
Traversa I Via delle Fornacette 109, Lucca
Calcolo mutuo
Prezzo di vendita:
Anticipo
20,00
Mutuo
80,00
Tasso: -+
Rata: 2.288 al mese
I risultati sono una stima indicativa basata sui dati inseriti e non costituiscono un’offerta finanziaria.
Inserzionista

Essegi Immobiliare S.r.l.
Viale Pacini 115, Lucca
Mostra Telefono
Chiama
CONTATTA

