

Locale Commerciale Carrara
€ 1.350.000Fondo Artigianale a Carrara
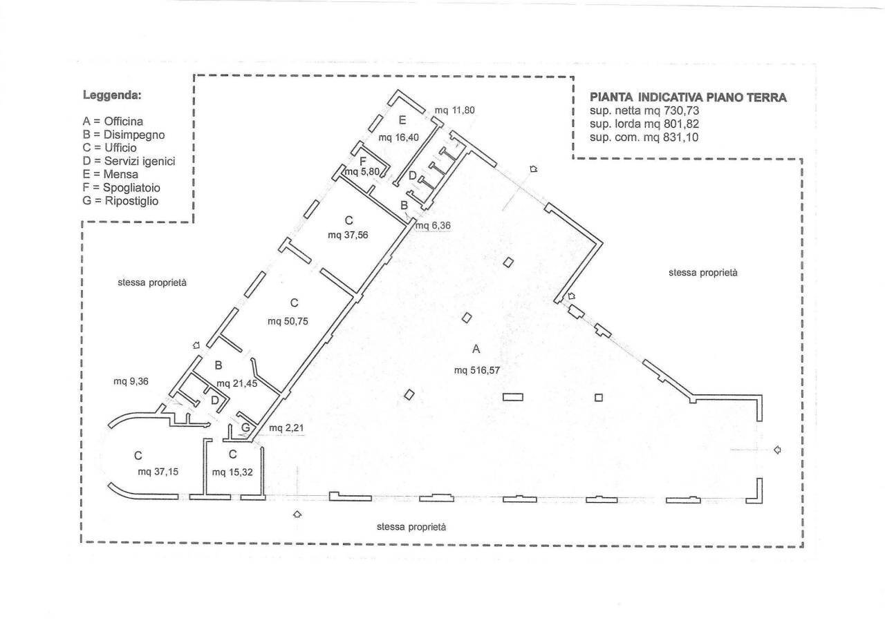
Capannone Artigianale / industriale di mq,800 di cui mq.516 area officina e i restanti ripartiti tra, uffici, servizi igienici, locale mensa, locale spogliatoio, ripostiglio. Completano la proprietà aia di parcheggio di mq.1302,64 + area verde di mq. 902,66.Ubicato in zona semicentrale e vicina ai servizi.
Dati principali
| Riferimento | 2487 |
| Data annuncio | 20/02/2025 |
| Contratto | Vendita |
| Tipologia | Locale Commerciale |
| Superficie | 831 m2 |
| Locali | più di 5 (6 altro), 2 bagni |
| Piano | 1 totali |
| Numero posti auto | 1 |
Costi
| Prezzo | 1.350.000 € |
| Prezzo al m2 | 1.625 €/m2 |
Efficienza energetica
| Classe energetica | In fase di calcolo |
Indirizzo e mappa
Carrara
Annuncio senza mappa,
prova a chiedere la posizione all'inserzionista
prova a chiedere la posizione all'inserzionista
Calcolo mutuo
Prezzo di vendita:
Anticipo
20,00
Mutuo
80,00
Tasso: -+
Rata: 3.861 al mese
I risultati sono una stima indicativa basata sui dati inseriti e non costituiscono un’offerta finanziaria.
Inserzionista

S.F. immobiliare di Lasagni Tiziana
Via Landinelli 28, Sarzana
Mostra Telefono
Mostra Cellulare
Chiama
CONTATTA