Trilocale Via Carlo Goldoni 5, Parma
€ 198.000Appartamento - Trilocale a Parma Centro, Parma
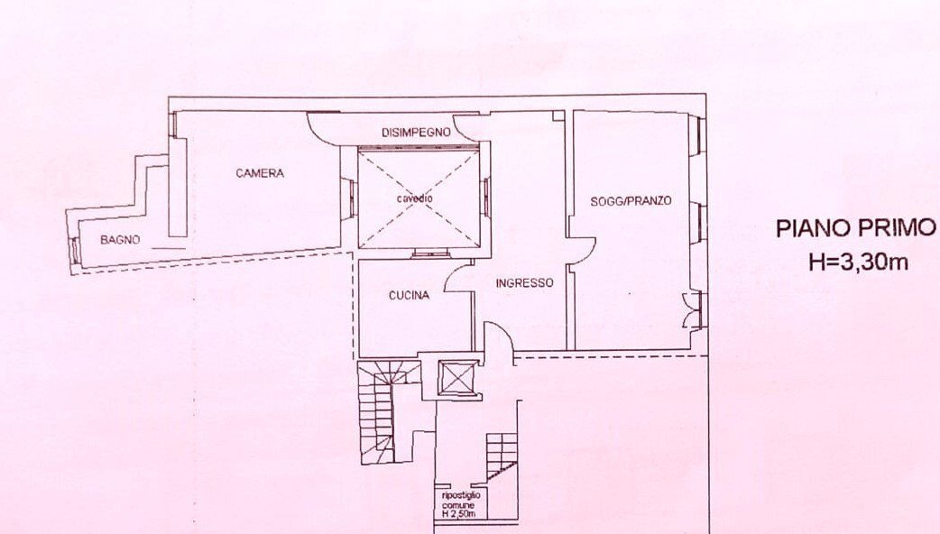
In piccolo Condominio di sole sei unità, centralissimo, a poca distanza da Piazza Garibaldi e Via Mazzini, appartamento in buono stato di circa 110 mq commerciali al primo piano con ascensore, composto da ingresso, soggiorno, cucina, corridoio di disimpegno con vetrate sul cavedio, camera matrimoniale, bagno finestrato. Possibilità di una seconda camera. Completo di cantina nel piano interrato. Riscaldamento autonomo, pavimentazione in parquet, doppi vetri, alti soffitti con travi a vista. Immobile subito libero e disponibile, adatto anche ad uso investimento o studio professionale. Richiesta 198.000 euro. Urania 0521/204462
Dati principali
| Riferimento | 301 |
| Data annuncio | 19/03/2025 |
| Contratto | Vendita |
| Tipologia | Appartamento |
| Superficie | 110 m2 |
| Locali | 3 (1 camera da letto, 2 altro), 1 bagno |
| Piano | 1 totali |
Caratteristiche
Costi
| Prezzo | 198.000 € |
| Prezzo al m2 | 1.800 €/m2 |
| Spese condominiali | € 65,00/mese |
Efficienza energetica
| Anno costruzione | 1800 |
| Classe energetica | F |
Planimetrie
Indirizzo e mappa
Via Carlo Goldoni 5, Parma
Calcolo mutuo
Prezzo di vendita:
Anticipo
20,00
Mutuo
80,00
Tasso: -+
Rata: 566 al mese
I risultati sono una stima indicativa basata sui dati inseriti e non costituiscono un’offerta finanziaria.
Inserzionista

Urania snc di Stefano e Luca Spaggiari
Borgo San Giuseppe 38/b, Parma
Mostra Telefono
Mostra Cellulare
Chiama
CONTATTA

