Locale Commerciale Via Venuti Padre e Figlio 8, Gradisca d'Isonzo
Trattativa riservataCapannone - Industriale-Artigianale a Gradisca d'Isonzo
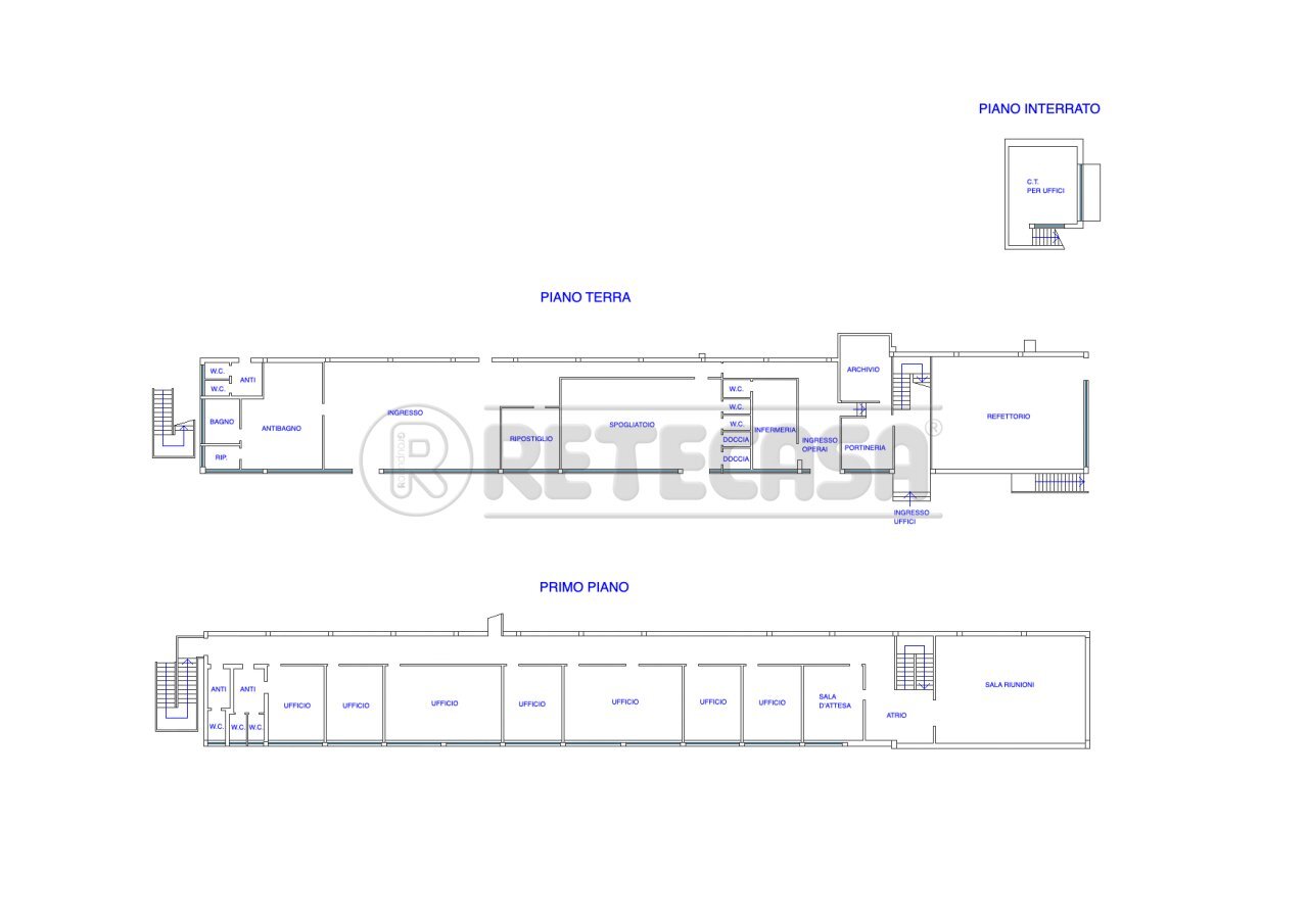
GRADISCA D'ISONZO, zona industriale: in collaborazione con UNICREDIT RE SERVICES in vendita capannone a destinazione artigianale/industriale. Il capannone si trova nelle immediate vicinanze del raccordo autostradale Villesse-Gorizia, adiacente all'Ottimax. L’immobile è composto da una zona produzione di complessivi 10.700 mq, alla quale si aggiungono circa altri 950 mq tra uffici e locali ad uso direzionale. La zona produzione è divisa in due navate, quella principale di circa 3.000 mq, con lunghezza di 150 mt, ha un’altezza totale di 10,60 mt ed è interamente dotata di carroponte da 10 t con altezza sotto-gancio di 8,50 mt. La seconda navata invece ha uno sviluppo di circa 6.100 mq con altezza di 4,90 mt. Adiacente alle due navate principali, si trova il magazzino, un edificio di circa 1.550 mq con altezza 8,10 mt, dotato di rampa di carico con accessibilità per autoarticolati. La zona uffici è disposta su due livelli. Il lotto complessivo del capannone è di circa 50.000. Sono presenti inoltre vari vani tecnici destinati all'alloggio di macchinari e cabina elettrica. Tutti gli impianti dell'immobile, impianto anti-incendio, impianto elettrico, impianto idrico-sanitario, impianto di riscaldamento e di condizionamento, sono perfettamente funzionanti, in quanto vengono regolarmente manutentati. La descrizione dell'immobile, la planimetria riqualificata e le metrature riportate non costituiscono elementi contrattuali ma sono solo indicativi.
Dati principali
| Riferimento | D-624 |
| Data annuncio | 19/11/2019 |
| Contratto | Vendita |
| Tipologia | Locale Commerciale |
| Superficie | 13800 m2 |
| Locali | più di 5 (10 altro), 8 bagni |
| Piano | 3 totali |
Costi
| Prezzo | Trattativa riservata |
Efficienza energetica
| Anno costruzione | 1970 |
| Classe energetica | E |
Planimetrie
Indirizzo e mappa
Via Venuti Padre e Figlio 8, Gradisca d'Isonzo
Inserzionista

Agenzia La Casa di Treleani Demis
Borgo Aquileia, 5, Palmanova
Mostra Telefono
Mostra Cellulare
Chiama
CONTATTA

