Villa Rosciano
€ 120.000Villa - Villa con giardino a Villa Oliveti, Rosciano
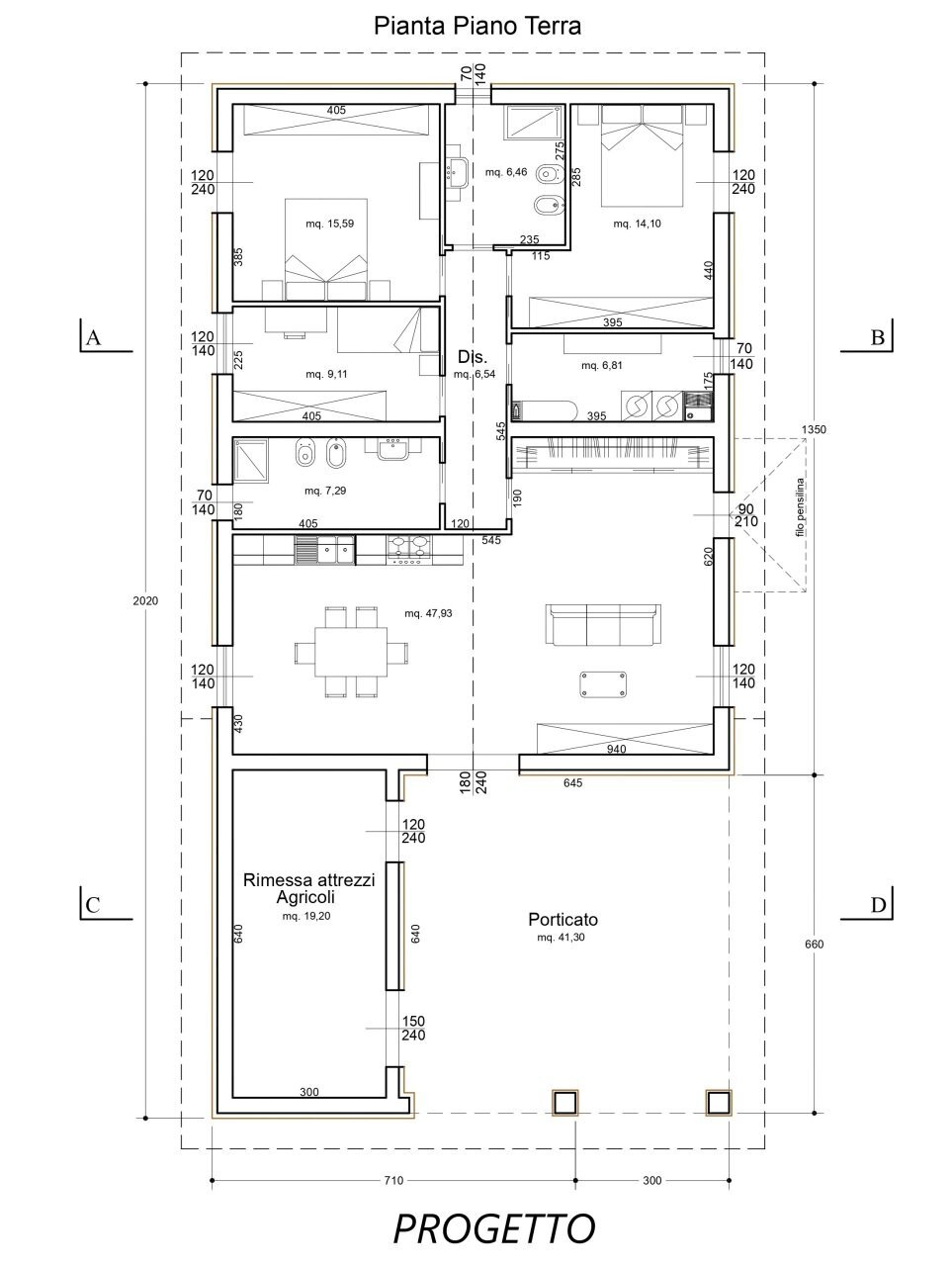
**In Vendita: Opportunità Unica a Villa Oliveti di Rosciano** Scopri questa straordinaria proprietà situata in una posizione tranquilla e strategica a Villa Oliveti di Rosciano. Un lotto di terreno edificabile di circa 2.600 mq ospita una costruzione al grezzo, attualmente destinata a scuderia, con la possibilità di trasformarla in una splendida villa singola su un unico livello. Il progetto architettonico è già disponibile, permettendoti di personalizzare la tua futura casa dei sogni. La superficie abitabile di 120 mq offre un'accogliente composizione: ingresso, ampio soggiorno, cucina, tre camere da letto, doppi servizi e ripostiglio. Un porticato coperto di 40 mq e una spaziosa cantina per il rimessaggio degli attrezzi agricoli completano questa proposta. La struttura in legnocemento con tetto in legno garantisce solidità e fascino rustico. Inoltre, c'è la possibilità di acquistare un terreno agricolo adiacente per ampliare il tuo spazio verde. Con accesso adattato per persone con mobilità ridotta, questa proprietà è perfetta per chi cerca comfort e tranquillità. Non perdere l'occasione di realizzare il tuo progetto abitativo in un contesto naturale e sereno. Contattaci per maggiori dettagli e per organizzare una visita!
Dati principali
| Riferimento | man1838 |
| Data annuncio | 18/09/2024 |
| Contratto | Vendita |
| Tipologia | Villa |
| Superficie | 180 m2 |
| Locali | più di 5 (3 camere da letto, 7 altro), 2 bagni |
| Piano | 1 totali |
Caratteristiche
Costi
| Prezzo | 120.000 € |
| Prezzo al m2 | 667 €/m2 |
Efficienza energetica
| Anno costruzione | 2013 |
| Classe energetica | In fase di calcolo |
Planimetrie
Indirizzo e mappa
Rosciano
Annuncio senza mappa,
prova a chiedere la posizione all'inserzionista
prova a chiedere la posizione all'inserzionista
Calcolo mutuo
Prezzo di vendita:
Anticipo
20,00
Mutuo
80,00
Tasso: -+
Rata: 343 al mese
I risultati sono una stima indicativa basata sui dati inseriti e non costituiscono un’offerta finanziaria.
Inserzionista

STUDIO CASA SAS
Via XX Settembre, 45/47 Zona Scalo, Manoppello
Mostra Telefono
Mostra Cellulare
Chiama
CONTATTA

