Trilocale via Piero della Francesca, 54, Milano
€ 2.500 al meseCorso Sempione Affittasi Trilocale ristrutturato
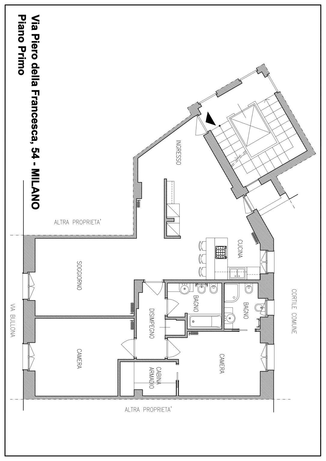
Corso Sempione /Via Piero Della Francesca n. 54 Appartamento posto al 1° piano di mq. 110 così composto: ingresso su soggiorno con cucina a vista, disimpegno, 2 camere, 2 bagni, cabina armadio e ripostiglio. Ristrutturato con impianto di condizionamento canalizzato. Impianto antifurto. Cucina, bagni, disimpegno e cabina armadio completamente arredati. Ottime finiture. Illuminazione Artemide. Riscaldamento centralizzato. LIBERO SUBITO Richiesta Mensile € 2500,00 oltre € 183,00 di spese condominiali comprensive di riscaldamento.
Dati principali
| Riferimento | Piero Della Francesca Silvia/Fabio |
| Data annuncio | 09/10/2025 |
| Contratto | Affitto |
| Tipologia | Appartamento |
| Superficie | 110 m2 |
| Locali | 3 (2 camere da letto, 1 altro), 2 bagni, cucina abitabile |
| Piano | 1 di 4 totali |
| Tipo di costruzione | Signorile |
| Box auto | Assente |
| Arredamento | Parziale |
Caratteristiche
Costi
| Prezzo | 2.500 € al mese |
| Spese condominiali | € 183,00/mese |
Efficienza energetica
| Anno costruzione | 1930 |
| Stato | Ottimo |
| Riscaldamento | Centralizzato |
| Classe energetica | E |
| Indice di prestazione energetica (IPE) | 175 kWh/m2 anno |
Planimetrie
Indirizzo e mappa
via Piero della Francesca, 54, Milano
Inserzionista

Immo Group srl
Via Roma 101, Torino
Mostra Telefono
Chiama
CONTATTA

