Villa Roma, Nepi
€ 255.000
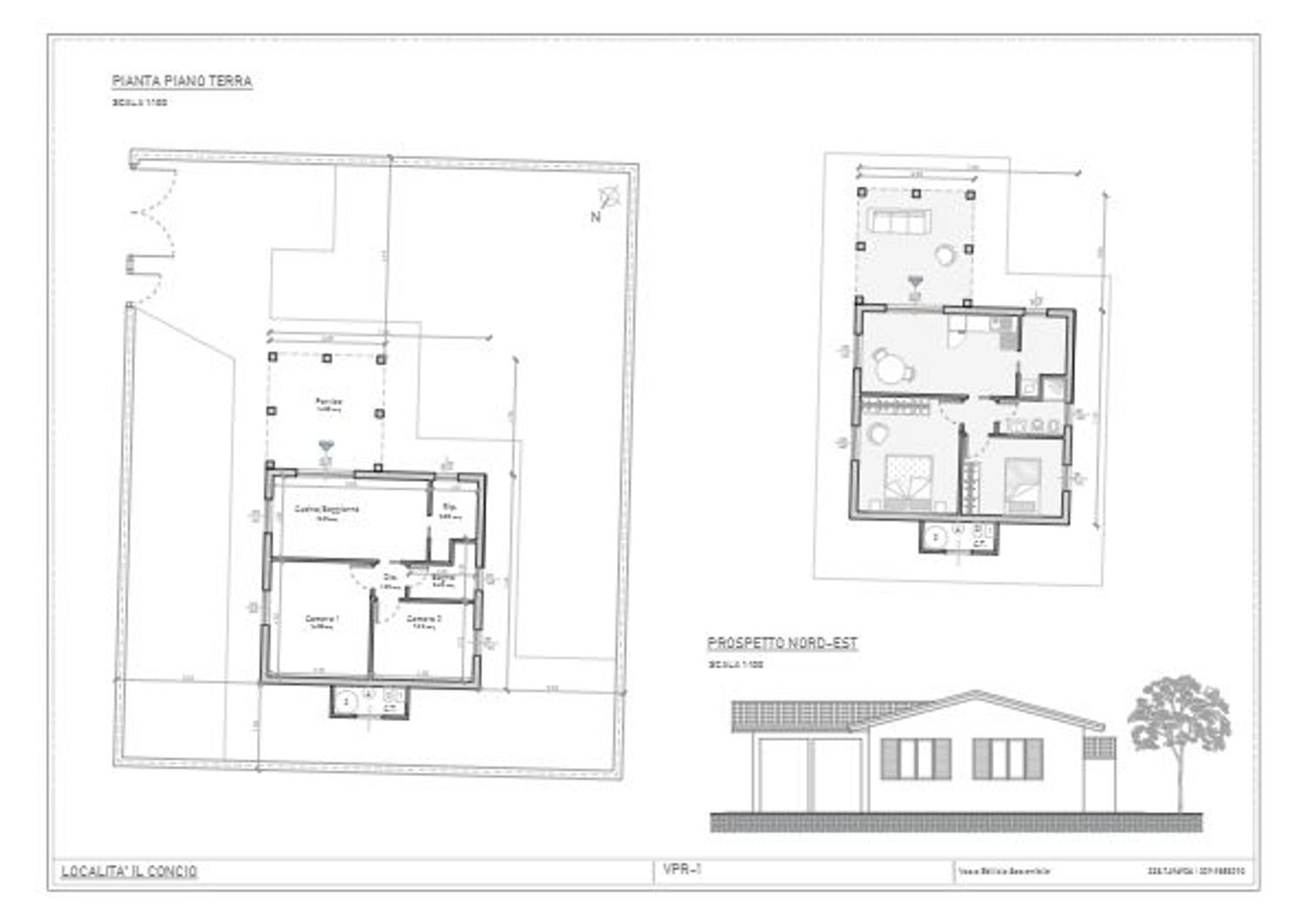
Nel comune di Nepi, in zona di nuova urbanizzazione al centro di tutti i servizi, proponiamo nuove costruzioni in bioedilizia di varie metrature. Le tipologie vanno dai 97,5 mq su lotto di 400mq ai 250 mq circa su lotto di 900 mq. Tutte le costruzioni vengono disposte su unico livello, la disposizione interna è personalizzabile cosi come le rifiniture, i tempi di consegna 8/10 mesi. Il metodo di costruzione è innovativo e permette alle costruzioni di essere totalmente ecologiche e alimentate con energie rinnovabili. Capitolato costruzioni: porzione di terreno, muri perimetrali con recinzione esterna, fabbricato costruito in legna lamellare X-LAM completo di tetto, tegole, discendenti, veranda esterna, cappotto esterno colorato, infissi esterni in pvc con grate e/o persiane in ferro, portone blindato, marciapiedi esterni e posto auto, isolamenti a terra e impermeabilizzazioni, allacci alla fognatura, alla rete elettrica, gas e acqua. Tramezzature interne con relativo isolamento acustico, infissi interni, pavimenti e rivestimenti, impianto elettrico, impianto idraulico, impianto riscaldamento/raffreddamento, impianto TV/SAT/, impianto fotovoltaico Kw 3, Impianto solare acqua sanitaria, pitture interne. Impianto irrigazione giardino, giardino a verde. Nella sezione del capitolato troverete il capitolato tecnico con tutte le tecniche e i materiali di costruzione. (LA CASA IN FOTO E' LA TIPOLOGIA UNIFAMILIARE DI 200MQ, APPENA TERMINATA E CONSEGNATA).
Dati principali
| Riferimento | ID2846653 |
| Data annuncio | 10/10/2025 |
| Contratto | Vendita |
| Tipologia | Villa |
| Superficie | 365 m2 |
| Locali | 3 (3 altro), 2 bagni |
| Piano | 1 totali |
Caratteristiche
Costi
| Prezzo | 255.000 € |
| Prezzo al m2 | 699 €/m2 |
Efficienza energetica
| Stato | Parzialmente ristrutturato |
| Tipo Alimentazione Riscaldamento | Elettrico |
| Classe energetica | Immobile esente da certificazione energetica |
Planimetrie
Indirizzo e mappa
Roma, Nepi
Annuncio senza mappa,
prova a chiedere la posizione all'inserzionista
prova a chiedere la posizione all'inserzionista
Calcolo mutuo
Prezzo di vendita:
Anticipo
20,00
Mutuo
80,00
Tasso: -+
Rata: 729 al mese
I risultati sono una stima indicativa basata sui dati inseriti e non costituiscono un’offerta finanziaria.
Inserzionista

Tocchi real estate
Via Degli Olmetti, 44, Formello
Mostra Cellulare
Chiama
CONTATTA

