Casa indipendente tagliamenazzo 30, Molinella
€ 160.000
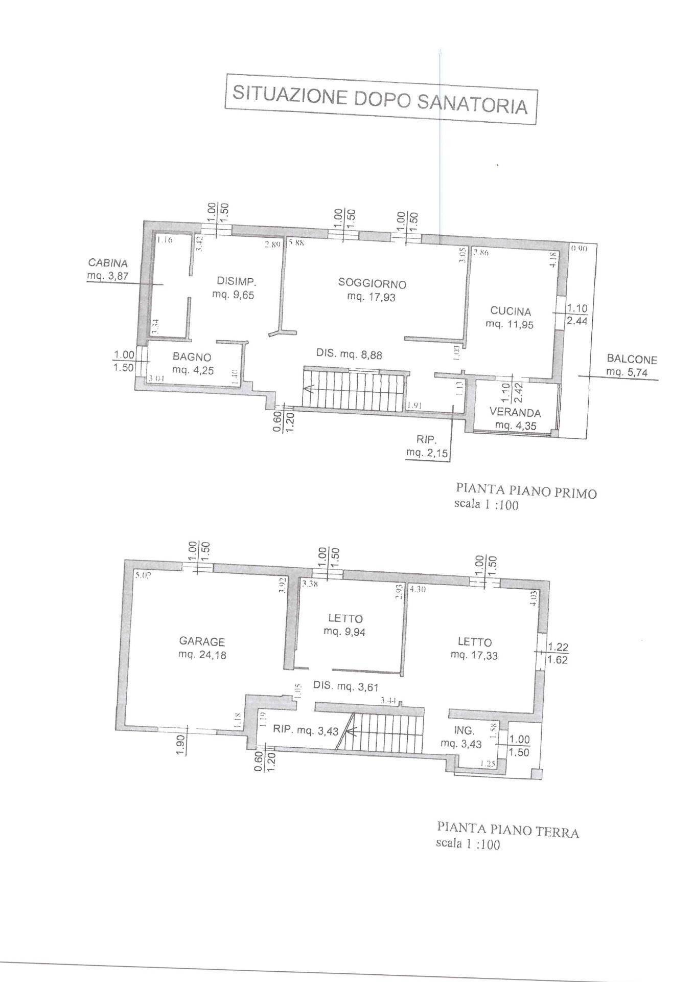
Miravalle - Casa Indipendente posta su due livelli composta da: Piano terra: ingresso, camera da letto matrimoniale, camera singola, sgabuzzino e garage. Primo piano: disimpegno, camera da letto matrimoniale con cabina armadio e bagno con box doccia, soggiorno e cucina abitabile con terrazzo coperto. Inoltre piccolo giardino annesso alla proprietà. Consegna a breve Tutti i dati, le foto e le descrizioni hanno carattere informativo e non costituiscono vincolo contrattuale. LA TUA CASA è formata da professionisti di consolidata esperienza che si affiancano al cliente nella ricerca, nell'acquisto e nella locazione di un immobile con affidabilità e trasparenza. La professionalità, la qualità, la continua tendenza al miglioramento, in sinergia con l innovazione tecnologica, sono i punti di forza della nostra impresa. Perseguiamo costantemente la qualità secondo strategie di miglioramento continuo orientate alla massima soddisfazione del cliente, assicurando sempre efficienza e tempismo. La ringraziamo per aver visitato il nostro sito, saremo lieti di incontrarla presso il nostro ufficio per un approfondimento delle sue esigenze. Vuoi saperne di più? Saremo felici di aiutarti a scegliere la migliore casa per la tua famiglia. Scopri il tuo prossimo focolare con noi... Correrai questo rischio?
Dati principali
| Riferimento | m034 |
| Data annuncio | 10/10/2025 |
| Contratto | Vendita |
| Tipologia | Casa indipendente |
| Superficie | 150 m2 |
| Locali | 5 (2 camere da letto, 3 altro), 1 bagno |
| Tipo di costruzione | Popolare |
| Occupato | Libero |
Costi
| Prezzo | 160.000 € |
| Prezzo al m2 | 1.067 €/m2 |
Efficienza energetica
| Stato | Ottimo |
| Riscaldamento | Autonomo |
| Classe energetica | F |
| Indice di prestazione energetica (IPE) | 335 kWh/m2 anno |
Planimetrie
Indirizzo e mappa
tagliamenazzo
30, Molinella
Annuncio senza mappa,
prova a chiedere la posizione all'inserzionista
prova a chiedere la posizione all'inserzionista
Calcolo mutuo
Prezzo di vendita:
Anticipo
20,00
Mutuo
80,00
Tasso: -+
Rata: 458 al mese
I risultati sono una stima indicativa basata sui dati inseriti e non costituiscono un’offerta finanziaria.
Inserzionista

LA TUA CASA di Biondo Romina
via Giuseppe Mazzini 151, Molinella
Mostra Telefono
Mostra Cellulare
Chiama
CONTATTA

