Appartamento via salaria, Colli del Tronto
€ 170.000
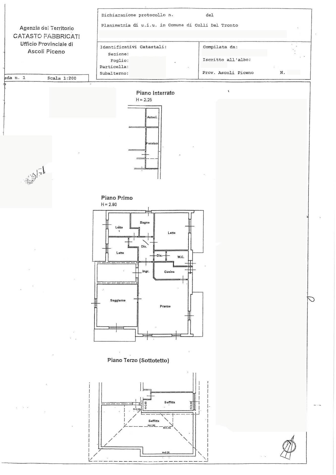
Appartamento con soffitta, fondaco e garage in Vendita a Colli del Tronto (AP) in zona San Giuseppe - Rif. 1458 L'unità delle dimensioni di 144,00 mq circa composto da sei locali sito al piano primo di un condominio senza ascensore con esposizione su tutti i lati, risulta così suddiviso: ingresso su corridoio, cucina abitabile con camino, ampio soggiorno, un'ampia camera matrimoniale una seconda camera matrimoniale con antibagno e bagno con box doccia, due camere singole e un bagno principale con vasca; balconi a servizio di tutti i lati. La proprietà è completata da una soffitta di 60,00 mq. circa con camera di 11,00 mq. circa attualmente adibita a studio, un fondaco di 11,00 mq. circa e un garage di 18,00 mq. circa; Il giardino completo di pozzo artesiano è in condivisione con gli altri condomini. L'unità in oggetto è dotata di pavimentazione in parquet nel soggiorno e nella camera matrimoniale principale, infissi in legno doppio vetro corredati di serrandine; impianto termico con elementi radianti in ghisa, oltre al termocamino, impianto dallarme, cassetta di sicurezza, condizionatori a split, autoclave, impiantistica completamente autonoma ed in regola con le ultime normative vigenti. La classe energetica è da valutare. Questo appartamento in vendita a Colli del Tronto, rappresenta un ottimo investimento oltre che la residenza ideale per un grande nucleo familiare in cerca di tranquillità e vicinanza a tutti i servizi. Per ulteriori informazioni e per eventuali visite potete contattare il numero 0735.060012, siamo disponibili presso i nostri uffici siti a San Benedetto del Tronto in via L. Bianchi, 18.
Dati principali
| Riferimento | 1458 |
| Data annuncio | 10/10/2025 |
| Contratto | Vendita |
| Tipologia | Appartamento |
| Superficie | 198 m2 |
| Locali | più di 5 (4 camere da letto, 2 altro), 2 bagni, cucina abitabile |
| Piano | 1 di 3 totali |
| Tipo di costruzione | Signorile |
| Occupato | Libero |
| Box auto | Singolo |
Caratteristiche
Costi
| Prezzo | 170.000 € |
| Prezzo al m2 | 859 €/m2 |
| Spese Riscaldamento | € 50,00/anno |
Efficienza energetica
| Stato | Buono |
| Riscaldamento | Autonomo |
| Classe energetica | F |
| Indice di prestazione energetica (IPE) | 230 kWh/m2 anno |
Planimetrie
Indirizzo e mappa
via salaria, Colli del Tronto
Annuncio senza mappa,
prova a chiedere la posizione all'inserzionista
prova a chiedere la posizione all'inserzionista
Calcolo mutuo
Prezzo di vendita:
Anticipo
20,00
Mutuo
80,00
Tasso: -+
Rata: 486 al mese
I risultati sono una stima indicativa basata sui dati inseriti e non costituiscono un’offerta finanziaria.
Inserzionista

Agile Immobiliare
via bianchi 18, San Benedetto del Tronto
Mostra Telefono
Chiama
CONTATTA

