Locale Commerciale Piazza Solferino 14, Torino
€ 265.000
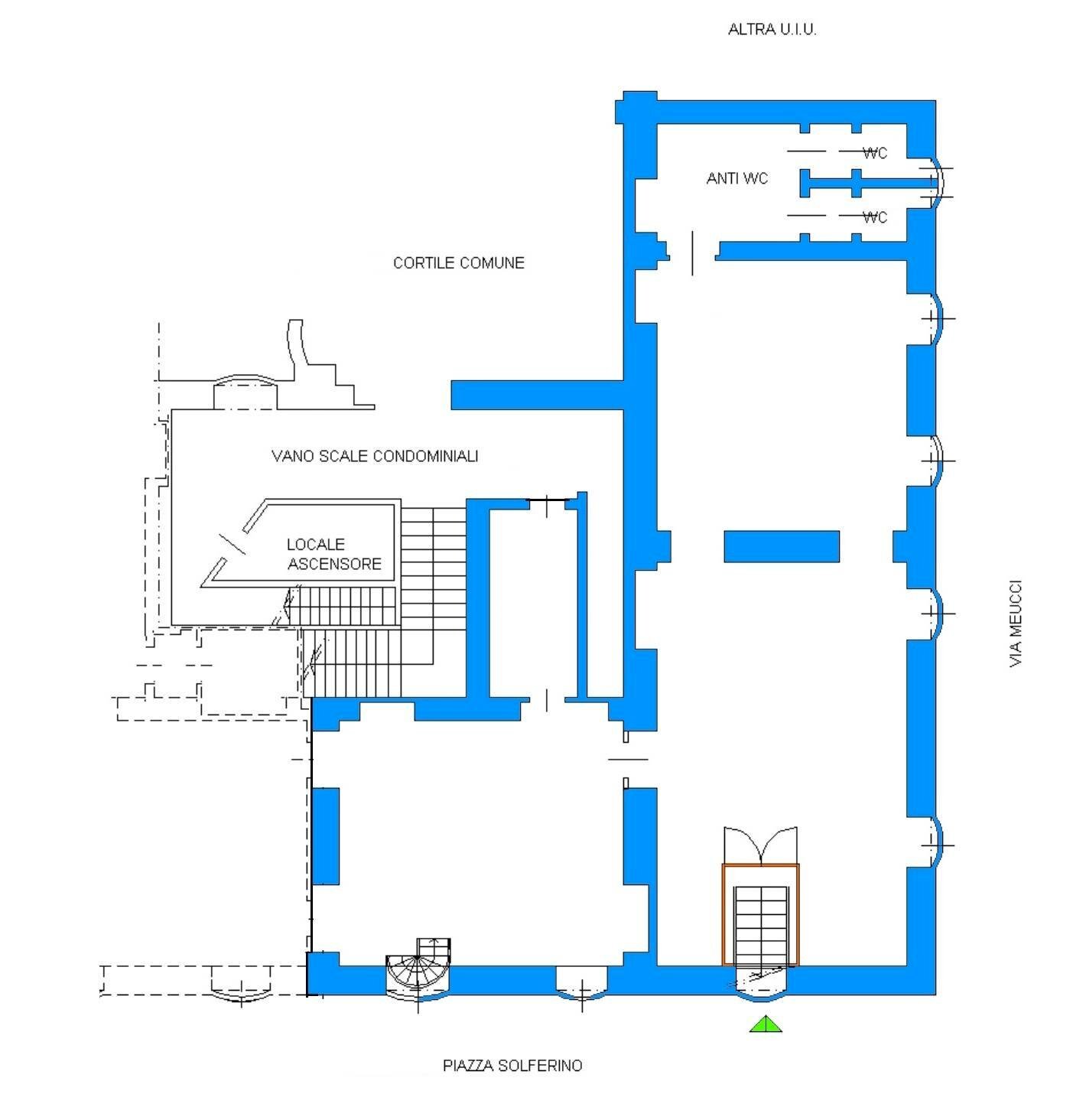
LA POSIZIONE - In vendita locale commerciale situato nel cuore del centro di Torino, in una delle aree più prestigiose, ricercate e ad alto passaggio della città. Limmobile, attualmente libero e immediatamente disponibile, si presta a molteplici destinazioni duso, risultando ideale per attività commerciali, showroom, studi professionali o spazi espositivi (cat. catastale C/1). Con una superficie complessiva di circa 180 m² (piano T mq. 145 e piano S mq. 35), il locale è accessibile direttamento dalla strada con ingresso dedicato. La distribuzione interna prevede quattro ampi ambienti ben proporzionati e due servizi igienici, garantendo una fruizione funzionale e versatile degli spazi. Limmobile si presenta in buono stato di conservazione, con finiture curate e impianti funzionanti. NO canna fumaria LIBERO
Dati principali
| Riferimento | H115782 |
| Data annuncio | 10/10/2025 |
| Contratto | Vendita |
| Tipologia | Locale Commerciale |
| Superficie | 180 m2 |
| Locali | 4 (4 altro), 2 bagni |
| Piano | Scantinato, 5 totali |
| Occupato | Libero |
| Arredamento | Assente |
Costi
| Prezzo | 265.000 € |
| Prezzo al m2 | 1.472 €/m2 |
Efficienza energetica
| Stato | Buono |
| Riscaldamento | Centralizzato |
| Classe energetica | E |
| Indice di prestazione energetica (IPE) | 157 kWh/m2 anno |
Planimetrie
Indirizzo e mappa
Piazza Solferino
14, Torino
Annuncio senza mappa,
prova a chiedere la posizione all'inserzionista
prova a chiedere la posizione all'inserzionista
Calcolo mutuo
Prezzo di vendita:
Anticipo
20,00
Mutuo
80,00
Tasso: -+
Rata: 758 al mese
I risultati sono una stima indicativa basata sui dati inseriti e non costituiscono un’offerta finanziaria.
Inserzionista

HASTON & ASTON S.N.C.
Via Pietro Micca, 21, Torino
Mostra Telefono
Chiama
CONTATTA

