Ufficio Villorba
€ 195.000
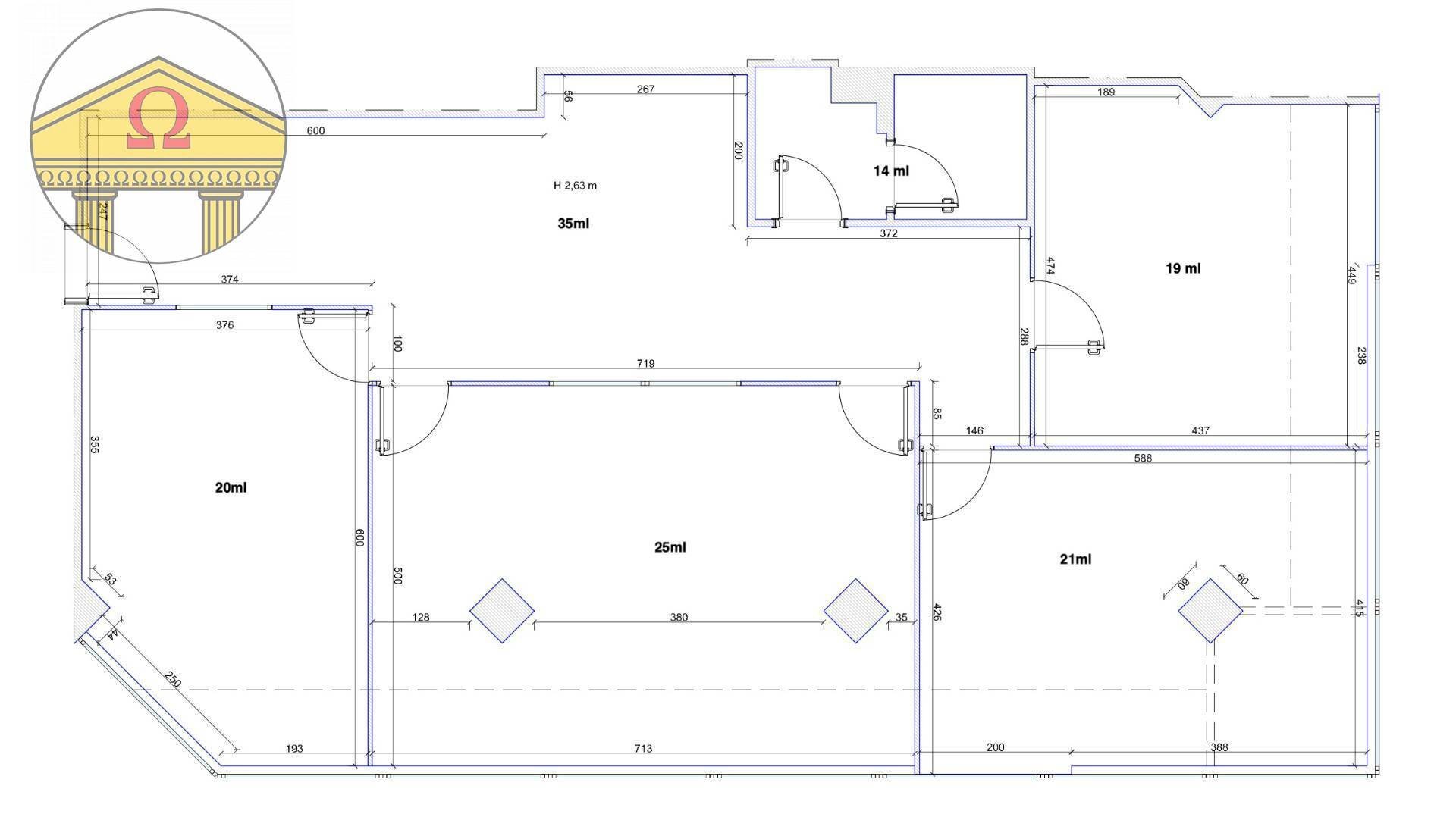
FONTANE DI VILLORBA Completamente Ristrutturato In posizione strategica su Viale della Repubblica, proponiamo in vendita un ufficio di 135 mq situato al terzo e ultimo piano, servito da ascensore. L'immobile rappresenta un'opportunità d'investimento sicura: attualmente è locato come spazio di coworking con una rendita lorda annua di 21.600. Punti di forza: Stato Immobile: Completamente ristrutturato con finiture moderne. Layout: Suddiviso in 4 ambienti indipendenti, luminosi e climatizzati. Arredo Incluso: Spazi già pronti all'uso, dotati di scrivanie, sedie ergonomiche e cassettiere. Location: Zona servita, massima visibilità e ampia disponibilità di parcheggi liberi. Un investimento "chiavi in mano" in una delle zone commerciali più dinamiche di Villorba. Rif. 3095 Agenzia Omega - Il tuo partner immobiliare di fiducia. Per altre proposte, visita il nostro sito https://www.agenziaomega.it
Dati principali
| Riferimento | 3095 |
| Data annuncio | 10/10/2025 |
| Contratto | Vendita |
| Tipologia | Ufficio |
| Superficie | 135 m2 |
| Locali | 4 (4 altro), 1 bagno |
| Piano | Ultimo piano, 3 totali |
| Occupato | Libero |
| Arredamento | Parziale |
Costi
| Prezzo | 195.000 € |
| Prezzo al m2 | 1.444 €/m2 |
Efficienza energetica
| Stato | Parzialmente ristrutturato |
| Riscaldamento | Semi-autonomo |
| Tipo Impianto Di Riscaldamento | ad aria |
| Classe energetica | Immobile esente da certificazione energetica |
Planimetrie
Indirizzo e mappa
Villorba
Annuncio senza mappa,
prova a chiedere la posizione all'inserzionista
prova a chiedere la posizione all'inserzionista
Calcolo mutuo
Prezzo di vendita:
Anticipo
20,00
Mutuo
80,00
Tasso: -+
Rata: 558 al mese
I risultati sono una stima indicativa basata sui dati inseriti e non costituiscono un’offerta finanziaria.
Inserzionista

AGENZIA IMMOBILIARE OMEGA
via Roma 137, Ponzano Veneto
Mostra Telefono
Chiama
CONTATTA

