Quadrilocale Via Villaretto, Bagnolo Piemonte
€ 54.000Quadrilocale in vendita
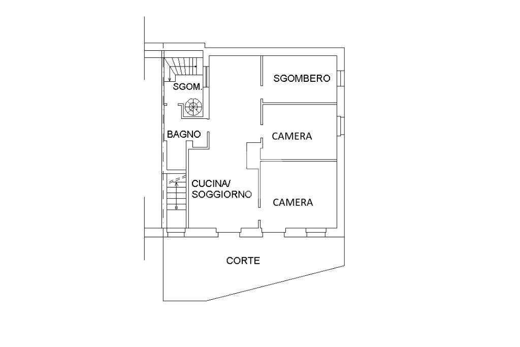
BAGNOLO PIEMONTE in Via Villaretto, quadrilocale al piano terra situato in una casa indipendente su tre lati, con ingresso autonomo.
L'ingresso avviene tramite cortile privato che conduce direttamente alla zona giorno, composta un ingresso living su soggiorno/cucina.
La parte notte ospita due camere da letto e un bagno. È presente inoltre una comoda lavanderia.
Completa la proprietà una cantina situata nel seminterrato.
Il riscaldamento è autonomo.
L'ingresso avviene tramite cortile privato che conduce direttamente alla zona giorno, composta un ingresso living su soggiorno/cucina.
La parte notte ospita due camere da letto e un bagno. È presente inoltre una comoda lavanderia.
Completa la proprietà una cantina situata nel seminterrato.
Il riscaldamento è autonomo.
Dati principali
| Riferimento | 61123846 |
| Data annuncio | 10/10/2025 |
| Contratto | Vendita |
| Tipologia | Appartamento |
| Superficie | 116 m2 |
| Locali | 4 (4 altro), 1 bagno |
| Piano | 1 totali |
Costi
| Prezzo | 54.000 € |
| Prezzo al m2 | 466 €/m2 |
Efficienza energetica
| Anno costruzione | 1950 |
| Riscaldamento | Autonomo |
| Tipo Alimentazione Riscaldamento | Metano |
| Classe energetica | F |
| Indice di prestazione energetica (EP GL, NREN) | 175.78 kWh/m3 anno |
Planimetrie
Video
Indirizzo e mappa
Via Villaretto, Bagnolo Piemonte
Calcolo mutuo
Prezzo di vendita:
Anticipo
20,00
Mutuo
80,00
Tasso: -+
Rata: 154 al mese
I risultati sono una stima indicativa basata sui dati inseriti e non costituiscono un’offerta finanziaria.
Inserzionista
Chiama
CONTATTA

