Appartamento Pordenone
€ 365.000
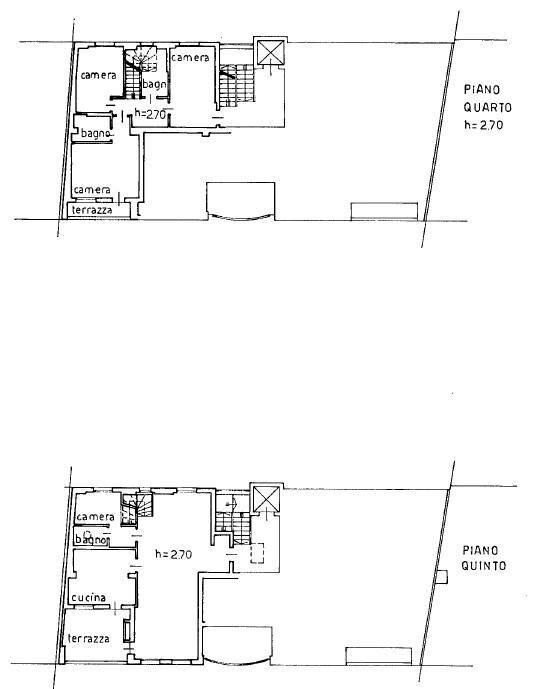
APPARTAMENTO DUPLEX IN VENDITA PORDENONE CENTRO Posizione esclusiva nel cuore della città In elegante palazzina residenziale, proponiamo prestigioso appartamento su due livelli di circa 200 mq commerciali, al quarto e quinto piano, con ampia terrazza. Labitazione si distingue per la spaziosità degli ambienti e la luminosità garantita dall'ottima esposizione. Al 5° piano troviamo: Ingresso con armadio a muro Ampio soggiorno/pranzo con caminetto Cucina abitabile Una camera da letto Un servizio Terrazzo abitabile esposto a Ovest Al 4° piano: Disimpegno notte con armadiatura su misura Camera matrimoniale con terrazzo Due camere doppie Due servizi Completa la proprietà la cantina al piano seminterrato e possibilità di acquisto a parte di uno/due garage. Riscaldamento autonomo con doppia zona termostatica Aria condizionata canalizzata al 5° piano e due split al 4° Canna fumaria in soggiorno e in terrazzo Arredo incluso: cucina completa, arredi dei tre bagni e armadiature a muro su entrambi i piani. Tutti gli elementi su misura restano compresi nella vendita. Una residenza raffinata, ideale per chi cerca spazio, comfort e posizione centrale, senza rinunciare alla privacy e alla tranquillità. Contattaci allo 0434 28125 per ulteriori informazioni e scopri tutte le nostre proposte su www.gruppolaprecisa.com
Dati principali
| Riferimento | LPP08-1375 |
| Data annuncio | 08/10/2025 |
| Contratto | Vendita |
| Tipologia | Appartamento |
| Superficie | 193 m2 |
| Locali | più di 5 (4 camere da letto, 2 altro), 3 bagni |
| Piano | Su più livelli, 5 totali |
| Tipo di costruzione | Signorile |
| Occupato | Libero |
| Arredamento | Parziale |
Caratteristiche
Costi
| Prezzo | 365.000 € |
| Prezzo al m2 | 1.891 €/m2 |
Efficienza energetica
| Stato | Ottimo |
| Riscaldamento | Autonomo |
| Classe energetica | E |
| Indice di prestazione energetica (IPE) | 129 kWh/m2 anno |
Planimetrie
Indirizzo e mappa
Pordenone
Annuncio senza mappa,
prova a chiedere la posizione all'inserzionista
prova a chiedere la posizione all'inserzionista
Calcolo mutuo
Prezzo di vendita:
Anticipo
20,00
Mutuo
80,00
Tasso: -+
Rata: 1.044 al mese
I risultati sono una stima indicativa basata sui dati inseriti e non costituiscono un’offerta finanziaria.
Inserzionista
Chiama
CONTATTA


