Trilocale Viale Verdi, Riccione
€ 470.000Trilocale in vendita
Riccione, zona Alba Mare,
proponiamo trilocale stio al piano primo con ascensore di nuova costruzione di una palazzina di sole 6 unità abitative.
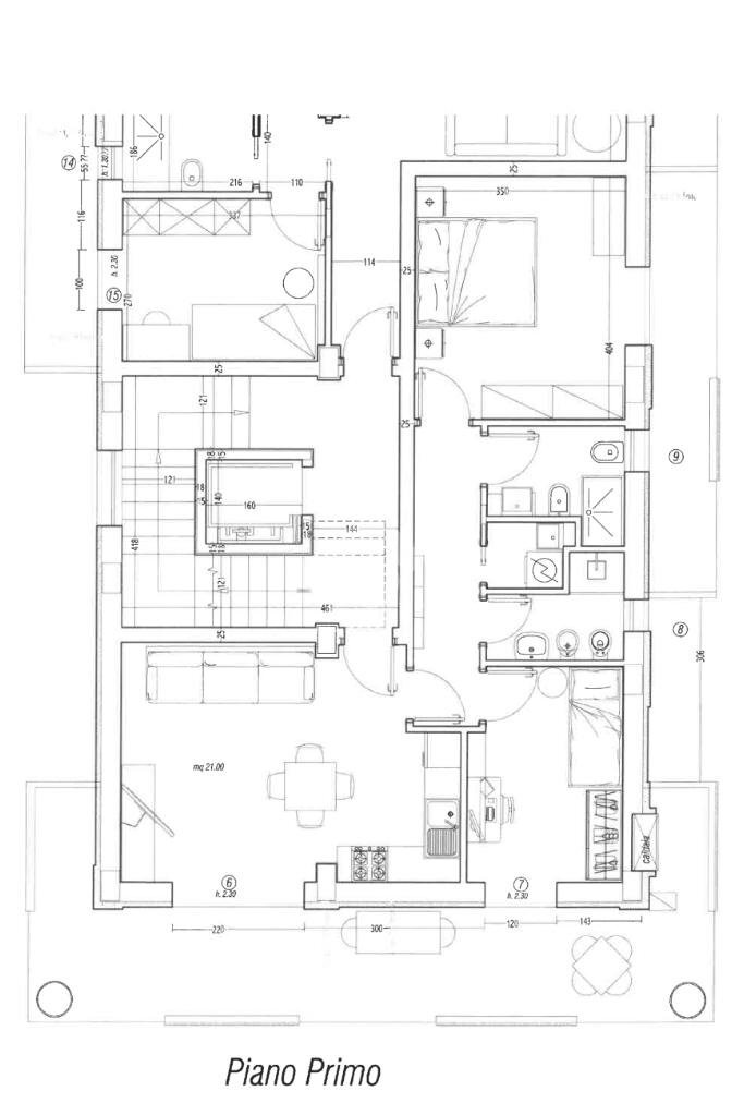
La soluzione dispone di una zona giorno ampia e luminosa con angolo cottura e accesso diretto sul terrazzo e di una zona notte, composta da una camera matrimoniale, una camera singola, due bagni finestrati e da un ripostiglio ad uso lavanderia.
La palazzina e l'immobile sono stati rifiniti con materiali di pregio, dotati di pompa di calore caldofreddo, infissi doppio vetro pvc, porta blindata e cappotto esterno.
Possibilità di acquistare a parte un garage situato al piano terra, fornito di presa per carica per macchina elettrica.
PER MAGGIORI INFORMAZIONI FISSA SUBITO UN APPUNTAMENTO 0541 14 13 715.
proponiamo trilocale stio al piano primo con ascensore di nuova costruzione di una palazzina di sole 6 unità abitative.
La soluzione dispone di una zona giorno ampia e luminosa con angolo cottura e accesso diretto sul terrazzo e di una zona notte, composta da una camera matrimoniale, una camera singola, due bagni finestrati e da un ripostiglio ad uso lavanderia.
La palazzina e l'immobile sono stati rifiniti con materiali di pregio, dotati di pompa di calore caldofreddo, infissi doppio vetro pvc, porta blindata e cappotto esterno.
Possibilità di acquistare a parte un garage situato al piano terra, fornito di presa per carica per macchina elettrica.
PER MAGGIORI INFORMAZIONI FISSA SUBITO UN APPUNTAMENTO 0541 14 13 715.
Dati principali
| Riferimento | 61114628 |
| Data annuncio | 05/10/2025 |
| Contratto | Vendita |
| Tipologia | Appartamento |
| Superficie | 86 m2 |
| Locali | 3 (3 altro), 2 bagni |
| Piano | 1 di 3 totali |
Costi
| Prezzo | 470.000 € |
| Prezzo al m2 | 5.465 €/m2 |
Efficienza energetica
| Anno costruzione | 2025 |
| Riscaldamento | Autonomo |
| Tipo Alimentazione Riscaldamento | Altro |
| Classe energetica | A4 |
Planimetrie
Indirizzo e mappa
Viale Verdi, Riccione
Calcolo mutuo
Prezzo di vendita:
Anticipo
20,00
Mutuo
80,00
Tasso: -+
Rata: 1.344 al mese
I risultati sono una stima indicativa basata sui dati inseriti e non costituiscono un’offerta finanziaria.
Inserzionista
Chiama
CONTATTA

