Locale Commerciale VIA LORENZO VITALE 13, Bari
€ 1.250 al mese
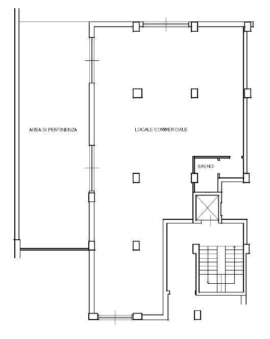
Nel cuore del quartiere SantAnna, in via Lorenzo Vitale n.13, proponiamo in locazione un ampio e luminoso locale commerciale di circa 160 mq, situato al piano terra di un edificio di recente costruzione. Il locale si presenta in ottime condizioni, con una superficie spaziosa e regolare, ideale per molteplici attività showroom, ufficio, studio professionale, palestra, centro estetico o attività di servizi in genere. È composto da un grande ambiente open space , facilmente modulabile secondo le proprie esigenze, quattro luminose vetrine e un bagno. Completa la proprietà una comoda area esterna pertinenziale, ideale per laccoglienza dei clienti, due posti auto di proprietà al piano S1, accessibili direttamente dallo stabile e lallaccio autonomo alla fornitura di acqua. Il locale viene consegnato corredato di serrande motorizzate e infissi di nuova installazione, certificato di agibilità e certificazione di conformità degli impianti. La posizione è strategica: in una zona in forte espansione e con facilità di parcheggio, a pochi minuti dal centro di Bari e ben collegata con le principali arterie stradali. Unopportunità perfetta per chi desidera avviare o trasferire la propria attività in un contesto moderno, tranquillo e di grande potenziale. Canone di locazione: 1.250,00 + IVA mensili. Richieste adeguate garanzie finanziarie. Per ulteriori informazioni e/o visite in loco, contattaci telefonicamente ai numeri 392.946.79.74 080.502.70.68. Classe energetica: C" - 388,81 kWh/mq anno Sup. cop. ..160 mq. c.a Sup. Scop. ..70 mq. c.a Le Rifiniture: - Serrande motorizzate di nuova installazione - Infissi in alluminio di nuova installazione - Pavimenti in gres porcellanato - Bagno in gres porcellanato - Porte interne in legno bianco - Allaccio autonomo fornitura acqua - Luci di emergenza - Edificio di recente costruzione I Vantaggi: - Posizione strategica nel quartiere SantAnna, zona in forte espansione di Bari - Facile accesso e ampia possibilità di parcheggio in zona - Locale luminoso e regolare di circa 160 mq, facilmente adattabile a diverse attività - Area esterna pertinenziale ideale per accoglienza clienti o esposizione - Due posti auto di proprietà al piano S1, direttamente collegati allo stabile - Contesto moderno, tranquillo e ben collegato con le principali arterie cittadine - Certificato di agibilità - Certificazioni di conformità relative agli impianti
Dati principali
| Riferimento | VITALE |
| Data annuncio | 02/10/2025 |
| Contratto | Affitto |
| Tipologia | Locale Commerciale |
| Superficie | 160 m2 |
| Locali | 4 (4 altro), 1 bagno |
| Occupato | Libero |
| Arredamento | Assente |
Caratteristiche
Costi
| Prezzo | 1.250 € al mese |
Efficienza energetica
| Stato | Ottimo |
| Riscaldamento | Assente |
| Tipo Alimentazione Riscaldamento | Altro |
| Classe energetica | C |
| Indice di prestazione energetica (IPE) | - |
Planimetrie
Video
Indirizzo e mappa
VIA LORENZO VITALE
13, Bari
Annuncio senza mappa,
prova a chiedere la posizione all'inserzionista
prova a chiedere la posizione all'inserzionista
Inserzionista

Planifim S.r.l.
Via Giuseppe Fanelli 217/d, Bari
Mostra Telefono
Mostra Cellulare
Chiama
CONTATTA

