Casa semi indipendente Via L. Spallanzani, Guastalla
€ 158.000Casa semindipendente in vendita
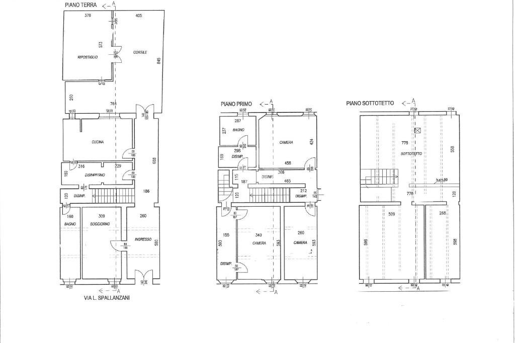
Nel centro storico di Guastalla proponiamo una casa semindipendente perfetta per chi cerca una soluzione abitativa spaziosa e funzionale. Con una superficie commerciale di 155 mq, l'immobile si sviluppa su due livelli, oltre alla soffitta, offrendo ampi spazi interni ideali per una famiglia. La casa dispone di tre camere da letto matrimoniali, soggiorno e un'ampia cucina abitabile. Sono presenti due bagni, uno con vasca ed uno con doccia, garantendo comfort e praticità. Costruita nel 1950, la proprietà conserva il fascino dell'epoca, con piccoli lavori di adeguamento riguardanti gli impianti, eseguiti negli anni. Un riservato cortile interno, in cui è presente anche un locale cantina, offre uno spazio esterno per momenti di relax. La posizione centrale permette di accedere facilmente ai servizi e alle comodità del comune, rendendo questa casa una scelta ideale per chi desidera vivere in un contesto indipendente senza rinunciare alla vicinanza al centro.
Per ulteriori informazioni e per visitare l'immobile chiama il 351-5965686 oppure scrivi a
Se oltre all’acquisto della tua nuova casa hai bisogno di vendere quella attuale, contattaci. Le nostre valutazioni sono sempre gratuite e senza impegno.
Ricorda inoltre che i nostri consulenti del credito sono sempre a tua disposizione per offrirti una consulenza personalizzata per mutui e finanziamenti su misura per le tue esigenze.
Visita le nostre pagine social:
Facebook: Gruppo Tecnocasa Novellara
Instagram: tecnocasa_novellara
Per ulteriori informazioni e per visitare l'immobile chiama il 351-5965686 oppure scrivi a
Se oltre all’acquisto della tua nuova casa hai bisogno di vendere quella attuale, contattaci. Le nostre valutazioni sono sempre gratuite e senza impegno.
Ricorda inoltre che i nostri consulenti del credito sono sempre a tua disposizione per offrirti una consulenza personalizzata per mutui e finanziamenti su misura per le tue esigenze.
Visita le nostre pagine social:
Facebook: Gruppo Tecnocasa Novellara
Instagram: tecnocasa_novellara
Dati principali
| Riferimento | 61117471 |
| Data annuncio | 30/09/2025 |
| Contratto | Vendita |
| Tipologia | Casa semi indipendente |
| Superficie | 155 m2 |
| Locali | 5 (5 altro), 2 bagni |
| Piano | 1 di 2 totali |
Costi
| Prezzo | 158.000 € |
| Prezzo al m2 | 1.019 €/m2 |
Efficienza energetica
| Anno costruzione | 1950 |
| Riscaldamento | Autonomo |
| Tipo Alimentazione Riscaldamento | Metano |
| Classe energetica | G |
| Indice di prestazione energetica (IPE) | - |
Planimetrie
Video
Indirizzo e mappa
Via L. Spallanzani, Guastalla
Calcolo mutuo
Prezzo di vendita:
Anticipo
20,00
Mutuo
80,00
Tasso: -+
Rata: 452 al mese
I risultati sono una stima indicativa basata sui dati inseriti e non costituiscono un’offerta finanziaria.
Inserzionista
Chiama
CONTATTA

