Casa indipendente Via Del Santuario 31, Blufi
€ 180.000
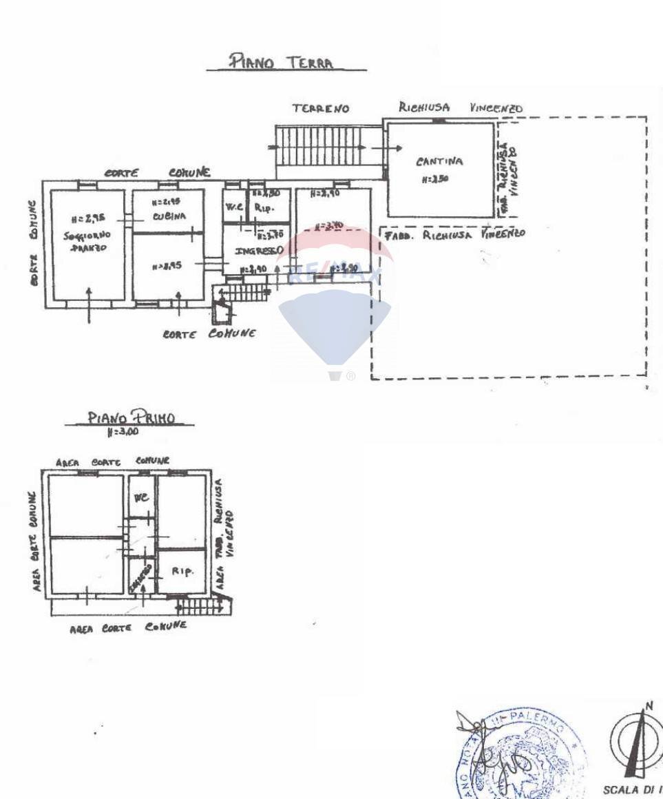
Blufi (PA), nel cuore delle Madonie, la Re/max propone la vendita di una proprietà immersa nel cuore della Sicilia. La proprietà e composta da quattro unità immobiliari indipendenti: - piano terra con una superficie catastale da 137 mq: l'immobile interamente ristrutturato è così composto: ingresso su ampia cucina soggiorno open space con camino, tre grandi camere da letto e du wc; - casa su due elevazioni con una superficie catastale di 205 mq: l'immobile da ristrutturare è così composto: ingresso al piano terra su disimpegno, un ampio soggiorno con camino, una cucina semi-abitabile, una saletta, una camera da letto, un wc ed un ripostiglio; al piano primo tre camere da letto, un ripostiglio ed un wc; completa questa unità una cantina al piano S1; - una stalla con una superficie catastale di 217 mq e con un'altezza minima di 4,30 m ed un'altezza massima di 5,40 m; - un garage con una superficie catastale di 59 mq. Completa la proprietà un terreno leggermente scosceso di circa 45.000 mq prevalentemente seminativo e con la presenza di un uliveto con circa 60 alberi di ulivo. La proprietà si trova a soli 5 km dallo svincolo autostradale della A19 Palermo/Catania di IROSA e vicinissimo al Santuario della Madonna dell'Olio e del famoso Campo di Tulipani. La proprietà è ideale per chi è alla ricerca di una possibilità di investimento immobiliare per realizzare un maneggio o un agriturismo o una struttura turistico-ricettiva. È possibile visionare gli immobili previo appuntamento telefonico
Dati principali
| Riferimento | 39391143-632 |
| Data annuncio | 30/09/2025 |
| Contratto | Vendita |
| Tipologia | Casa indipendente |
| Superficie | 618 m2 |
| Locali | più di 5 (8 camere da letto, 4 altro), 4 bagni, cucina abitabile |
| Piano | Terra, 2 totali |
| Tipo di costruzione | Media |
| Occupato | Libero |
| Box auto | Assente |
| Numero posti auto | 4 |
| Arredamento | Assente |
Caratteristiche
Costi
| Prezzo | 180.000 € |
| Prezzo al m2 | 291 €/m2 |
Efficienza energetica
| Stato | Buono |
| Riscaldamento | Autonomo |
| Classe energetica | G |
| Indice di prestazione energetica (IPE) | - |
Planimetrie
Virtual tour
Indirizzo e mappa
Via Del Santuario
31, Blufi
Annuncio senza mappa,
prova a chiedere la posizione all'inserzionista
prova a chiedere la posizione all'inserzionista
Calcolo mutuo
Prezzo di vendita:
Anticipo
20,00
Mutuo
80,00
Tasso: -+
Rata: 515 al mese
I risultati sono una stima indicativa basata sui dati inseriti e non costituiscono un’offerta finanziaria.
Inserzionista

RE/MAX Master Home 2
Via della Libertà, 86, Palermo
Mostra Telefono
Mostra Cellulare
Manna Giuseppe
Mostra Telefono
Chiama
CONTATTA

