Locale Commerciale Via Dei Mulini, Benevento
€ 200.000
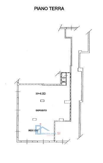
Locale Commerciale con ottima rendita - Via Dei Mulini (BN) Riferimento Annuncio: SI56 A Benevento città in zona Centrale Via Dei Mulini proponiamo in vendita locale di complessivi 260mq circa con 2 wc e 2 vetrine fronte strada. L'immobile allo stato attuale si suddivide in locale 150mq ad uso commerciale con n. 2 vetrine fronte Via Dei Mulini e ulteriori 110mq comunicanti adibiti a deposito nella parte retrostante. Ideale uso investimento considerato l'attività storica che esercita internamente con ottima rendita. Per ulteriori informazioni o per fissare un appuntamento potete contattare il seguente numero: 375 8277996. Riferimento Annuncio: SI56
Dati principali
| Riferimento | SI56 |
| Data annuncio | 26/09/2025 |
| Contratto | Vendita |
| Tipologia | Locale Commerciale |
| Superficie | 300 m2 |
| Locali | 2 (2 altro), 2 bagni, cucina non presente |
| Piano | Terra |
| Occupato | Occupato da Proprietario |
| Box auto | Assente |
Caratteristiche
Costi
| Prezzo | 200.000 € |
| Prezzo al m2 | 667 €/m2 |
Efficienza energetica
| Stato | Buono |
| Riscaldamento | Autonomo |
| Tipo Alimentazione Riscaldamento | Altro |
| Classe energetica | G |
| Indice di prestazione energetica (IPE) | - |
Planimetrie
Indirizzo e mappa
Via Dei Mulini, Benevento
Annuncio senza mappa,
prova a chiedere la posizione all'inserzionista
prova a chiedere la posizione all'inserzionista
Calcolo mutuo
Prezzo di vendita:
Anticipo
20,00
Mutuo
80,00
Tasso: -+
Rata: 572 al mese
I risultati sono una stima indicativa basata sui dati inseriti e non costituiscono un’offerta finanziaria.
Inserzionista

Immobiliare SI di Stefano Iadanza
Via Luigi Pirandello, Benevento
Mostra Cellulare
Chiama
CONTATTA

