Capannone Via Romairone, Genova (zona Bolzaneto)
€ 7.000 al meseCapannone industriale, Via Romairone, Genova GE
IPI Agency propone in locazione CAPANNONE INDUSTRIALE a Genova Bolzaneto, via Romairone.
In posizione strategica e comoda all'ingresso autostradale.
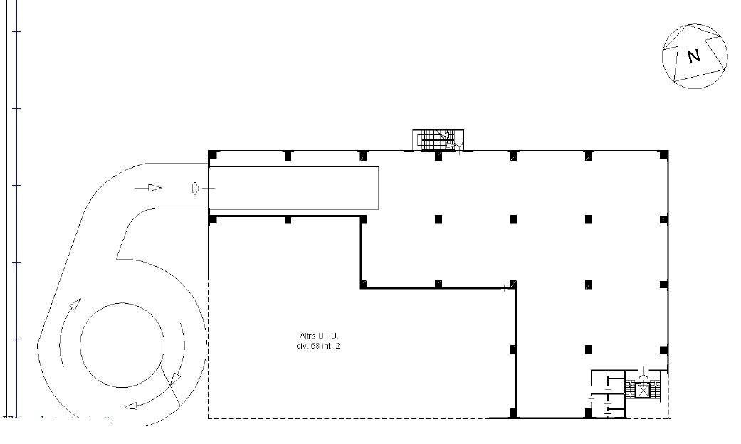
L'unità ha una superficie di 1.000 mq circa, è situata al primo piano dell'edificio ed è carrabile (soletta con portata industriale).
Altezze sotto trave di 6 metri, ideale per attività industriali o logistiche e produttive.
Caratteristiche principali:
Superficie: 1.000 mq circaAltezza interna: 6 metriserviziOttima accessibilità, comodo all'ingresso autostradale di Genova Bolzaneto.
Canone Euro 7.000 + iva /mese.
Grazie alla collaborazione con professionisti del settore, offriamo ai nostri clienti un servizio di consulenza dedicato per individuare le migliori soluzioni di mutuo e facilitare l'accesso al finanziamento.
IPI Genova Agency tel. 010 542009 www.ipi-agency.com Funzionario Elisabetta Sighinolfi
IPI è un gruppo specializzato nella consulenza e nei servizi immobiliari a investitori e operatori istituzionali, aziende e privati. Attraverso le diverse linee di business delle società controllate, IPI copre a 360 gradi i servizi al real-estate: gestione, valorizzazione, promozione e sviluppo immobiliare, consulenza, intermediazione, valutazioni, due diligence e analisi di mercato. IPI è anche una investment company con un rilevante patrimonio immobiliare proprio.
IPI Agency è presente sul territorio nazionale, con filiali a Torino, Milano, Genova, Firenze, Bologna, Padova, Roma, Bari e Napoli.
IPI Genova Agency
Via XII Ottobre 2-19° piano
16121 Genova
Tel. 010 542009
Mail: [email protected]
In posizione strategica e comoda all'ingresso autostradale.
L'unità ha una superficie di 1.000 mq circa, è situata al primo piano dell'edificio ed è carrabile (soletta con portata industriale).
Altezze sotto trave di 6 metri, ideale per attività industriali o logistiche e produttive.
Caratteristiche principali:
Superficie: 1.000 mq circaAltezza interna: 6 metriserviziOttima accessibilità, comodo all'ingresso autostradale di Genova Bolzaneto.
Canone Euro 7.000 + iva /mese.
Grazie alla collaborazione con professionisti del settore, offriamo ai nostri clienti un servizio di consulenza dedicato per individuare le migliori soluzioni di mutuo e facilitare l'accesso al finanziamento.
IPI Genova Agency tel. 010 542009 www.ipi-agency.com Funzionario Elisabetta Sighinolfi
IPI è un gruppo specializzato nella consulenza e nei servizi immobiliari a investitori e operatori istituzionali, aziende e privati. Attraverso le diverse linee di business delle società controllate, IPI copre a 360 gradi i servizi al real-estate: gestione, valorizzazione, promozione e sviluppo immobiliare, consulenza, intermediazione, valutazioni, due diligence e analisi di mercato. IPI è anche una investment company con un rilevante patrimonio immobiliare proprio.
IPI Agency è presente sul territorio nazionale, con filiali a Torino, Milano, Genova, Firenze, Bologna, Padova, Roma, Bari e Napoli.
IPI Genova Agency
Via XII Ottobre 2-19° piano
16121 Genova
Tel. 010 542009
Mail: [email protected]
Dati principali
| Riferimento | GE-01407 |
| Data annuncio | 25/09/2025 |
| Contratto | Affitto |
| Tipologia | Capannone |
| Superficie | 1000 m2 |
Costi
| Prezzo | 7.000 € al mese |
Efficienza energetica
| Classe energetica | G |
| Indice di prestazione energetica (IPE) | - |
Planimetrie
Indirizzo e mappa
Via Romairone, Genova - quartiere Bolzaneto
Inserzionista

IPI Genova Agency
Via XII Ottobre 2/194a, Genova
Mostra Telefono
Chiama
CONTATTA

