Attività Commerciale Via Principe Umberto 15, Adro
€ 105.000
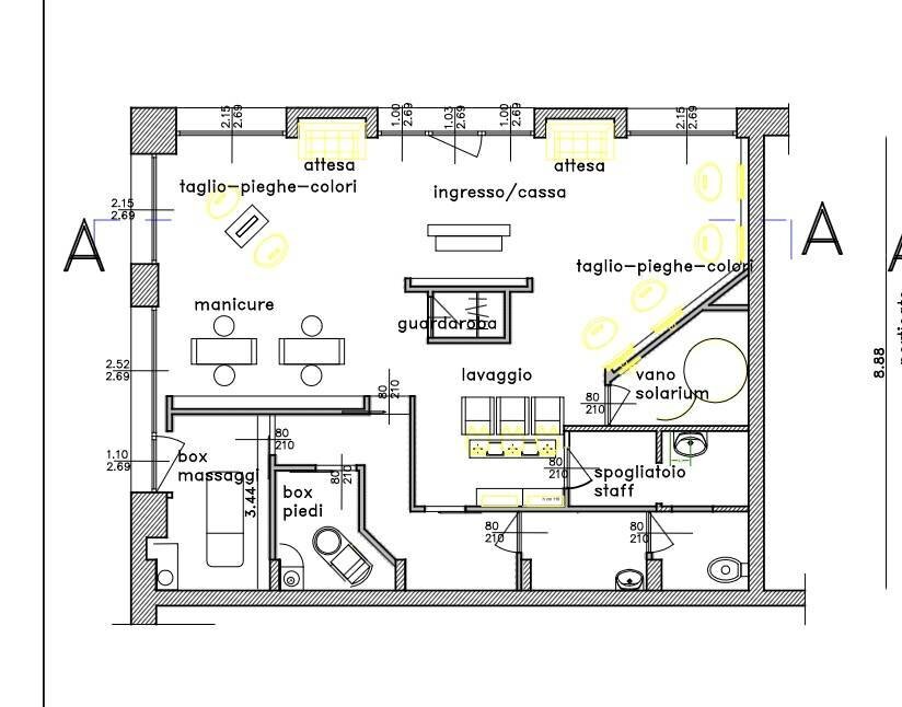
ADRO: Cosa sapere sull'attività: Salone Parrucchiera ed estetica avviato con ampio pacchetto clienti - Zona di forte passaggio - ottimale esposizione e visibilità grazie alle 5 vetrine presenti - parcheggio esterno gratuito - contesto residenziale di recente costruzione - nessun lavoro necessario - basse spese condominiali - ampie metrature - possibilità di personalizzazione - possibilità di acquisto muri Descrizione e particolarità: Completamente ristrutturato e personalizzato nel 2020, proponiamo salone da parrucchiera ed estetica. Posto al piano terra, risulta essere molto visibili a chiunque sopraggiunga nelle vicinanze del complesso residenziale. L'immobile, di 115 mq, è stato così composto e personalizzato: ' ' 6 postazioni parrucchiera ' ' 1 cabina massaggi/trattamenti ' ' 1 cabina pedicure ' ' 2 postazioni manicure ' ' 1 cabina solarium (adattabile a trattamenti) ' ' Bagno con antibagno, guardaroba, magazzino ' ' Macchinari professionali (Laser diodo 808 per epilazione e trattamenti estetici) ' Arredi su misura Buizza Tutti gli impianti si presentano nuovi e a norma; l'intero impianto funziona con pompa di calore e VMC (Ventilazione meccanica controllata). Attualmente operativo con n° 4 professioniste (2 parrucchiere + 2 estetiste) Affitto 1100 + iva, scadenza contratto 6+6 nel 2031 https://www.btsimmobiliare.it/i-1045-vendita-locale-commerciale-adro-torbiato/ NB: Uno dei nostri annunci ha colto la tua attenzione o stai cercando casa in vendita/affitto? Scrivici Nome, Cognome ed esigenze al numero Whatsapp 351.71.73.181 o se preferisci, un email allindirizzo [email protected] Sarà nostra premura metterci in contatto con te quanto prima. Inoltre, avvisiamo la gentile clientela che, se non volete perdere le nostre nuove acquisizioni in vendita e/o in affitto, invitiamo a salvare il numero sopra riportato al fine di visionare tutte le nostre nuove proposte. Ci trovi anche su Instagram e Facebook, seguici!
Dati principali
| Riferimento | 911 |
| Data annuncio | 24/09/2025 |
| Contratto | Vendita |
| Tipologia | Attività Commerciale |
| Superficie | 120 m2 |
| Locali | 1 (1 altro), 3 bagni |
| Piano | Terra, 1 totali |
| Occupato | Libero |
Costi
| Prezzo | 105.000 € |
| Prezzo al m2 | 875 €/m2 |
Efficienza energetica
| Tipo Alimentazione Riscaldamento | Altro |
| Classe energetica | Immobile esente da certificazione energetica |
Planimetrie
Indirizzo e mappa
Via Principe Umberto
15, Adro
Annuncio senza mappa,
prova a chiedere la posizione all'inserzionista
prova a chiedere la posizione all'inserzionista
Calcolo mutuo
Prezzo di vendita:
Anticipo
20,00
Mutuo
80,00
Tasso: -+
Rata: 300 al mese
I risultati sono una stima indicativa basata sui dati inseriti e non costituiscono un’offerta finanziaria.
Inserzionista

BTS Immobiliare
Via Vittorio Veneto, 4, Sarnico
Mostra Cellulare
Chiama
CONTATTA

