Appartamento Via Silvio Pellico 1, Fragagnano
€ 90.000
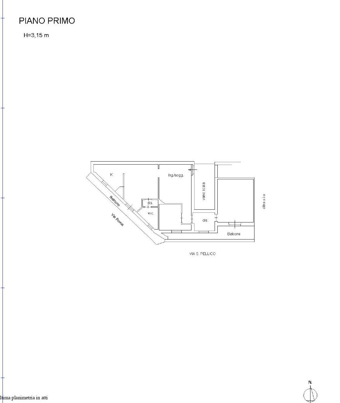
PUGLIA - FRAGAGNANO (TA) Nel centro di Fragagnano, in una zona residenziale tranquilla e ben servita, proponiamo in vendita rifinito appartamento La sua posizione al primo piano garantisce una vista libera da altri edifici ed è soleggiato durante tutto il giorno. Attualmente libero al rogito, l'immobile si presenta in ottime condizioni. La sua metratura totale di 87 M² è distribuita in modo funzionale, offrendo spazi ben organizzati e confortevoli.L'appartamento è composto da 5 locali, tra cui un soggiorno, una cucina abitabile, due camere da letto e un bagno. L'immobile è stato ristrutturato con gusto e materiali di qualità, garantendo un'atmosfera accogliente e moderna.La soluzione si trova in un edificio di solo due piani, che garantisce una maggiore tranquillità e riservatezza. Inoltre, la sua vicinanza a tutti i servizi e ai principali mezzi di trasporto rende questo appartamento ideale per chi desidera vivere in una zona ben collegata e comoda, perfetto per chi cerca una soluzione abitativa pronta all'uso e in una posizione strategica.
Dati principali
| Riferimento | CBI150-2568-63811 |
| Data annuncio | 23/09/2025 |
| Contratto | Vendita |
| Tipologia | Appartamento |
| Superficie | 87 m2 |
| Locali | 5 (2 camere da letto, 3 altro), 1 bagno, cucina abitabile |
| Piano | 1 di 2 totali |
| Tipo di costruzione | Media |
| Occupato | Libero |
| Box auto | Assente |
| Arredamento | Assente |
Costi
| Prezzo | 90.000 € |
| Prezzo al m2 | 1.034 €/m2 |
Efficienza energetica
| Stato | Ottimo |
| Riscaldamento | Autonomo |
| Tipo Impianto Di Riscaldamento | a stufa |
| Classe energetica | F |
| Indice di prestazione energetica (IPE) | 123 kWh/m2 anno |
Planimetrie
Indirizzo e mappa
Via Silvio Pellico
1, Fragagnano
Annuncio senza mappa,
prova a chiedere la posizione all'inserzionista
prova a chiedere la posizione all'inserzionista
Calcolo mutuo
Prezzo di vendita:
Anticipo
20,00
Mutuo
80,00
Tasso: -+
Rata: 257 al mese
I risultati sono una stima indicativa basata sui dati inseriti e non costituiscono un’offerta finanziaria.
Inserzionista

Coldwell Banker Gruppo Bodini
Via Pitagora, 90B, Taranto
Mostra Telefono
Chiama
CONTATTA

