Casa indipendente via Giuseppe Griva 47, Rivalta di Torino
€ 245.000
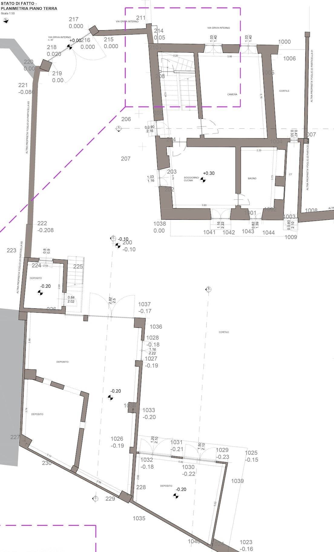
RIVALTA DI TORINO, VIA GRIVA CASA INDIPENDENTE DA RISTRUTTURARE CON POSSIBILITA' DI UNI, BI/TRIFAMILIARE Nel cuore del centro storico di Rivalta di Torino, e precisamente nella centralissima via Guseppe Griva, a pochi passi dal Comune e da ogni comodità proponiamo la vendita di una casa indipendente da ristrutturare caratterizzata da ampi spazi e grandi potenzialità. La proprietà costruita tra la fine del 1800 e l'inizio del 1900 sorge su un lotto di terreno di mq 740 circa ed è ora formata dalla casa principale sviluppata su due livelli per una superficie complessiva di mq 160 circa oltre a cantina e sottotetto e da locali deposito. Al piano terra della casa principale troviamo ingresso, soggiorno - cucina, un bagno, una camera, il locale c.t.. Attraverso la comoda scala interna si raggiunge il piano primo con tre camere e un bagno. Il sottotetto è accessibile attraverso una scala retrattile. Al piano interrato ampia cantina. Nel cortile sono presenti locali deposito per mq 140 circa e possibilità di creare più posti auto. La proprietà ha già fatto predisporre un progetto di massima che prevede la ristrutturazione totale con la possibiltà di recuperare anche la tettoia ed il deposito che sono siti nel cortile creando una, due o tre unità abitative anche volendo completamente indipendenti e precisamente due alloggi nella casa principale più una villetta o due villette per un totale di mq 300 circa. Grazie all'indipendenza e alla privacy garantite, questa soluzione è perfetta per chi desidera una soluzione abitativa tranquilla e riservata. Inoltre, la posizione centrale di questa casa indipendente consente di raggiungere facilmente tutti i servizi e le attività commerciali del centro di Rivalta di Torino, rendendola ancora più appetibile per coloro che amano vivere in un ambiente dinamico e ben collegato. La posizione unica ne fa anche una buona occasione di investimento sia ad uso privato che commerciale!!! I dati qui riportati sono informativi e non costituiscono elemento contrattuale. Accertamenti catastali e comunali in corso.
Dati principali
| Riferimento | 1635 |
| Data annuncio | 16/09/2025 |
| Contratto | Vendita |
| Tipologia | Casa indipendente |
| Superficie | 300 m2 |
| Locali | più di 5 (4 camere da letto, 2 altro), 1 bagno, cucina a vista |
| Piano | Intero edificio, 2 totali |
| Occupato | Libero |
| Box auto | Assente |
| Numero posti auto | 2 |
Caratteristiche
Costi
| Prezzo | 245.000 € |
| Prezzo al m2 | 817 €/m2 |
Efficienza energetica
| Stato | Da ristrutturare |
| Riscaldamento | Autonomo |
| Classe energetica | D |
| Indice di prestazione energetica (IPE) | 214 kWh/m2 anno |
Planimetrie
Indirizzo e mappa
via Giuseppe Griva
47, Rivalta di Torino
Annuncio senza mappa,
prova a chiedere la posizione all'inserzionista
prova a chiedere la posizione all'inserzionista
Calcolo mutuo
Prezzo di vendita:
Anticipo
20,00
Mutuo
80,00
Tasso: -+
Rata: 701 al mese
I risultati sono una stima indicativa basata sui dati inseriti e non costituiscono un’offerta finanziaria.
Inserzionista

Eurocasa Immobiliare s.a.s.
Via Giaveno, 54/20a, Rivalta di Torino
Mostra Telefono
Mostra Cellulare
Segarelli Rossella
Mostra Telefono
Chiama
CONTATTA

