Trilocale Vimercate
€ 129.000
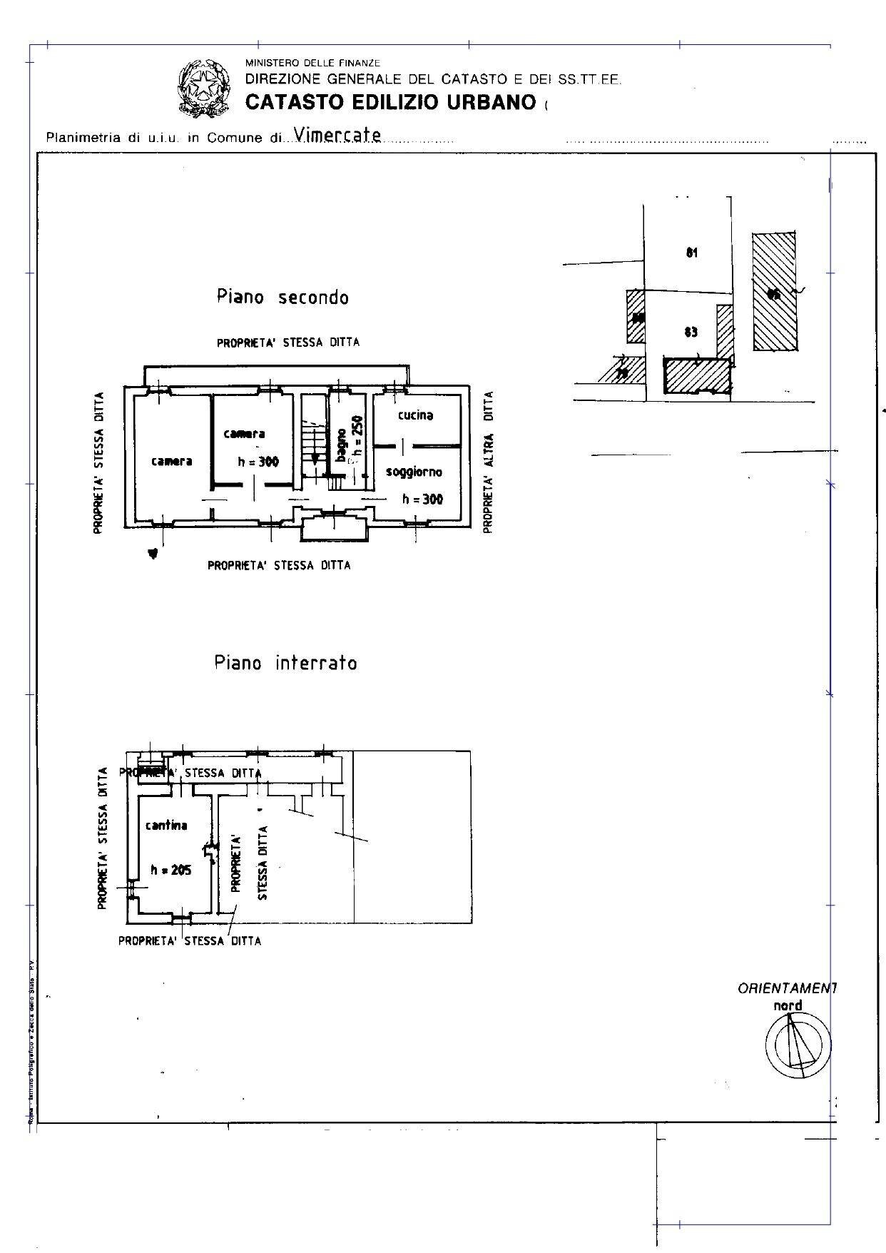
In mini contesto signorile, appartamento situato al PIANO SECONDO ed ULTIMO in centro VIMERCATE Con una superficie totale di 120 metri quadrati, di cui 110 calpestabili, offre ampi spazi per vivere in modo comodo e funzionale. All'interno, si trovano 3 LOCALI, tra cui una luminosa zona giorno con CUCINA ABITABILE, BALCONE perfetta per trascorrere piacevoli momenti, disimpegno con accesso alle 2 SPAZIOSE CAMERE DA LETTO ben illuminate, ideali per ospitare una famiglia numerosa o per creare uno spazio studio o hobby. Il bagno finestrato è dotato di tutti i comfort necessari. Il riscaldamento è autonomo e utilizza il metano come combustibile, garanzia di un ambiente sempre caldo e confortevole. Lo stato di conservazione dell'appartamento richiede una ristrutturazione, ma questo rappresenta un'ottima opportunità per personalizzare gli spazi secondo i propri gusti e esigenze. Gli infissi e le finestre, in doppio vetro legno, garantiscono un'ottima isolamento termico e acustico.L'immobile è venduto non arredato, offrendo la possibilità di arredarlo a proprio piacimento e secondo le proprie esigenze. Completa la proprietà un'AMPIA CANTINA DI 20MQ, perfetta per riporre oggetti e attrezzature. Inoltre, la sua posizione strategica permette di avere a portata di mano tutti i principali servizi, come scuole, supermercati e mezzi di trasporto pubblico.In sintesi, l'appartamento in vendita a Vimercate è un'ottima soluzione abitativa per chi desidera uno spazio comodo, funzionale e ben distribuito, in una zona tranquilla ma strategica. Grazie alle sue caratteristiche e alla possibilità di ristrutturarlo secondo i propri gusti, rappresenta un investimento sicuro e duraturo nel tempo. In classe energetica "G" NO SPESE CONDOMINIALI PER INFORMAZIONI E VISIONE CONTATTATECI AL NUMERO DIRETTO 02/38236174 - 339/2955559 EMAIL: [email protected] PER VALUTARE LE NOSTRE OFFERTE CONSULTATE IL SITO INTERNET : www.immobilgo.net SU APPUNTAMENTO INDIRIZZO : Via Marconi, 1 Trezzo Sull' Adda.
Dati principali
| Riferimento | V002927 |
| Data annuncio | 16/09/2025 |
| Contratto | Vendita |
| Tipologia | Appartamento |
| Superficie | 120 m2 |
| Locali | 3 (2 camere da letto, 1 altro), 1 bagno, cucina abitabile |
| Tipo di costruzione | Media |
| Occupato | Libero |
| Arredamento | Assente |
Caratteristiche
Costi
| Prezzo | 129.000 € |
| Prezzo al m2 | 1.075 €/m2 |
Efficienza energetica
| Stato | Da ristrutturare |
| Riscaldamento | Autonomo |
| Classe energetica | G |
| Indice di prestazione energetica (IPE) | - |
Planimetrie
Video
Indirizzo e mappa
Vimercate
Annuncio senza mappa,
prova a chiedere la posizione all'inserzionista
prova a chiedere la posizione all'inserzionista
Calcolo mutuo
Prezzo di vendita:
Anticipo
20,00
Mutuo
80,00
Tasso: -+
Rata: 369 al mese
I risultati sono una stima indicativa basata sui dati inseriti e non costituiscono un’offerta finanziaria.
Inserzionista

ImmobilGo
via guglielmo marconi 1, Trezzo sull'Adda
Mostra Telefono
Mostra Cellulare
Chiama
CONTATTA

