Casa indipendente Don Luigi Sturzo, Tuglie
€ 95.000
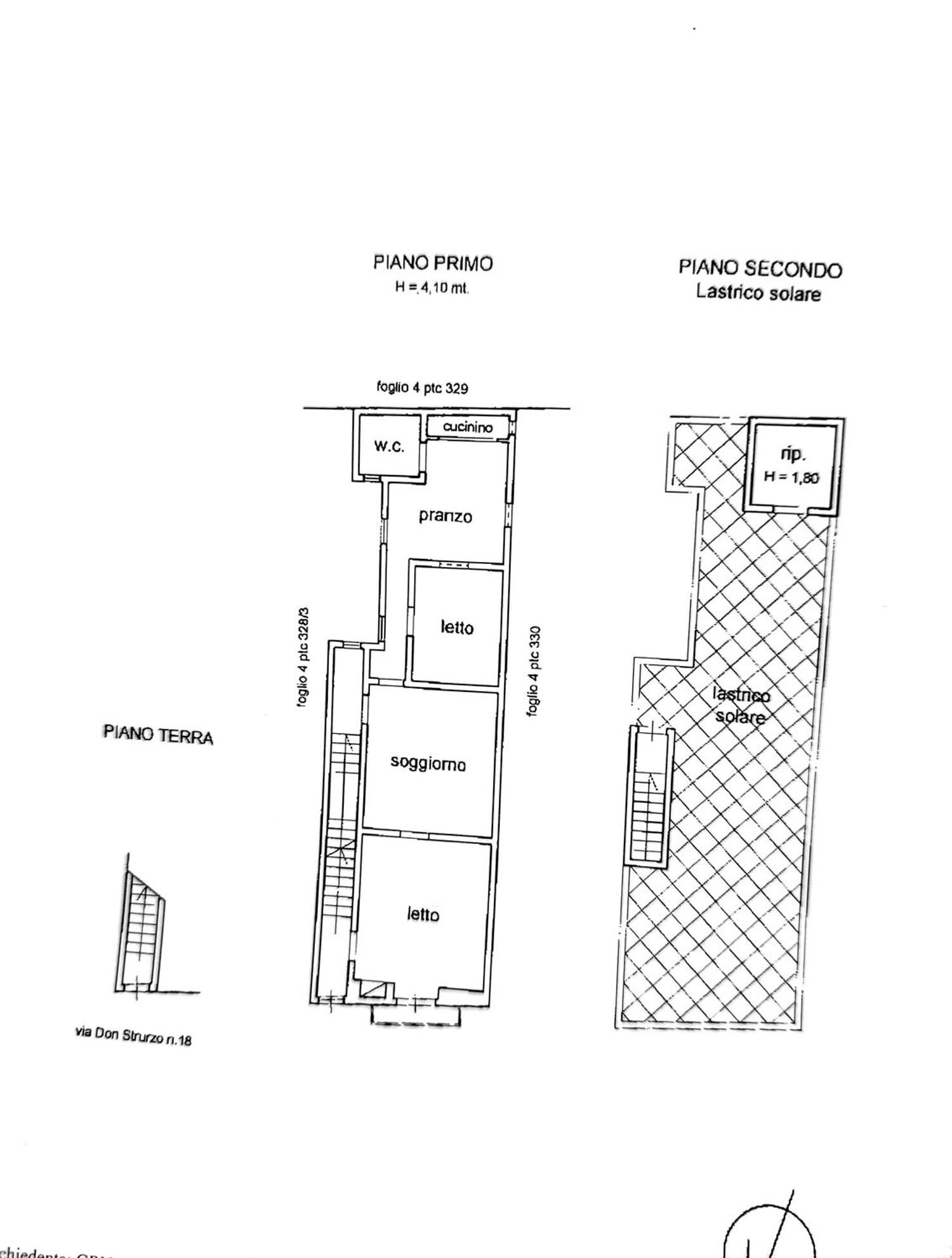
In zona centralissima, vicina al centro storico e servita da tutti i generi di attività, si vende abitazione con accesso indipendente. L'immobile si sviluppa sul primo piano e copre una superficie di circa ottanta mq; è disposto con ingresso su salone, disimpegno, cucina abitabile con camino, bagno, cameretta, camera matrimoniale con balcone; lastrico solare di proprietà esclusiva con comodo vano tecnico e accesso interno alla stessa abitazione. L'abitazione è stata totalmente ristrutturata e dispone di infissi nuovi in alluminio con doppio vetro, aria condizionata, rifiniture nuove, porta blindata, prese satellitari digitali. Ottima soluzione per giovani famiglie o come pied-a-terre per la bella stagione.
Dati principali
| Riferimento | 81209 |
| Data annuncio | 13/09/2025 |
| Contratto | Vendita |
| Tipologia | Casa indipendente |
| Superficie | 103 m2 |
| Locali | 4 (4 altro), 1 bagno |
| Piano | 1 totali |
Costi
| Prezzo | 95.000 € |
| Prezzo al m2 | 922 €/m2 |
Efficienza energetica
| Stato | Parzialmente ristrutturato |
| Tipo Alimentazione Riscaldamento | Elettrico |
| Classe energetica | E |
| Indice di prestazione energetica (IPE) | - |
Planimetrie
Indirizzo e mappa
Don Luigi Sturzo, Tuglie
Annuncio senza mappa,
prova a chiedere la posizione all'inserzionista
prova a chiedere la posizione all'inserzionista
Calcolo mutuo
Prezzo di vendita:
Anticipo
20,00
Mutuo
80,00
Tasso: -+
Rata: 272 al mese
I risultati sono una stima indicativa basata sui dati inseriti e non costituiscono un’offerta finanziaria.
Inserzionista

Studiozero24 Gallipoli
Via Kennedy, 13, Gallipoli
Mostra Telefono
Mostra Cellulare
Chiama
CONTATTA

